Kaan architects ha progettato un edificio polifunzionale nel nuovo quartiere Bottière Chénaie nell’area nord est di Nantes, vincitore di un concorso internazionale del 2013. Il complesso fa parte di un più grande progetto di urban planning di Jean-Pierre Pranlas Descours in collaborazione con Atelier Bruel-Delmar per la parte paesaggistica.
Il lotto a disposizione è circondato da infrastrutture di trasporto, risultando isolato dagli tessuto urbano circostante. Per questo motivo il tentativo principale dello studio è stato quello di creare un nuovo punto di riferimento pensando all’edificio come un dispositivo capace di incanalare, tramite il programma, i diversi flussi del quartiere in costruzione.
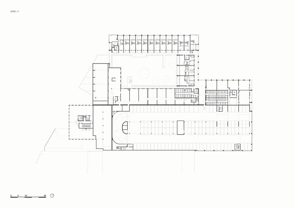
Bottière Chénaie si presenta come un edificio estremamente compatto, sia volumetricamente, sia in facciata. I cinque piani residenziali si appoggiano su un plinto contenente gli spazi commerciali, un supermercato e il parcheggio.
Sul lato nord ovest dell’isolato, si trova un edificio residenziale distribuito a ballatoio per minimizzare l’ingombro dei nuclei scala. Separato, invece, sul lato est, l’edificio dedicato all’edilizia popolare, sempre a corte, che dà a ogni unità abitativa una doppia esposizione e una loggia che, a seconda dei casi, guarda verso la città o verso la corte. Per ultimo, sul lato sud ovest a completamento del landscape urbano, è stato inserito il blocco che ospita gli uffici.
Per rendere il tutto omogeneo, la facciata monolitica è stata studiata con una griglia di 60x60 cm e una struttura in calcestruzzo prefabbricato che offre la possibilità di avere ampie finestrature e angoli completamente vetrati.
- Progetto:
- Bottière Chénaie
- Luogo:
- Nantes
- Architetto:
- Kaan architects
- Team di progetto:
- Dante Borgo, Sebastiaan Buitenhuis, Marc Coma, Sebastian van Damme, Paolo Faleschini, Marylène Gallon, Renata Gilio, Narine Gyulkhasyan, Sophie Ize, Jan Teunis ten Kate, Wouter Langeveld, Julie Le Baud, Yinghao Lin, Aimee Mackenzie, Elsa Marchal, Ismael Planelles Naya, Ana Rivero Esteban, Cécile Sanchez, Yannick Signani, Christian Sluijmer, Joeri Spijkers
- Collaboratori:
- Architetto locale: Atelier Forny; Consulto strutturale: AIA Ingenierie
- Completamento:
- 2019
