Studio di progettazione: Hiroyuki Oinuma (HOAA)
Nome del progetto: House in Nakano
Luogo: Tokyo, Giappone
Dimensioni: 96,38 mq
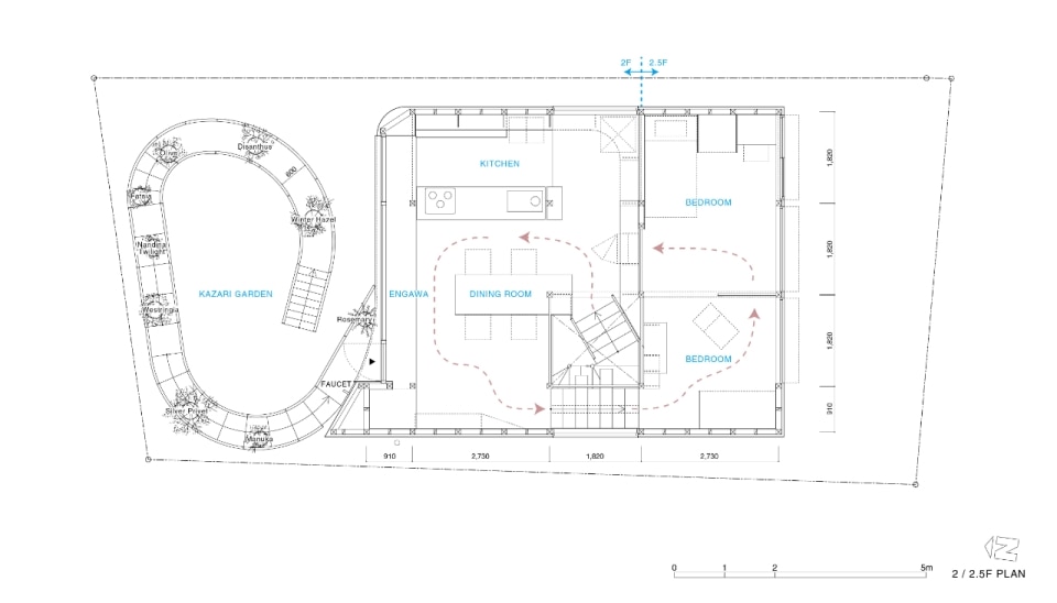
Occupa un lotto in un quartiere densamente edificato di Tokyo la casa-studio che Hiroyuki Oinuma (studio Hoaa) ha progettato per sé. Inserita in una fitta rete di costruzioni, l’unico affaccio aperto sulla strada, anziché verso altri edifici a distanza ravvicinata, è a nord: un’esposizione generalmente penalizzante, che qui diventa occasione progettuale. La facciata principale è infatti schermata da un percorso rialzato e curvilineo, il “Kazari Garden”, un giardino in vaso che da una parte separa la casa dalla strada, dall’altra la connette, innescando una relazione visiva e sociale con lo spazio pubblico e incoraggiando interazioni spontanee con i passanti. All’interno, il suo tracciato prosegue in una sequenza di ambienti organizzati su livelli sfalsati che assecondano la differenza di quota del sito. Gli spazi si susseguono in un passaggio continuo, segnato da scale, corrimano e arredi su misura, come se fosse riproposto il percorso esterno anche all'interno.
