Gli studi di architettura milanesi Asabesi e ATOMAA ridisegnano due sale della corte minore di Palazzo Tornielli di Barengo per ospitare l’estensione di un grosso studio legale situato nello stesso edificio: una stanza viene dedicata al ricevimento e all’attesa e l'altra a incontri e riunioni per piccoli gruppi.
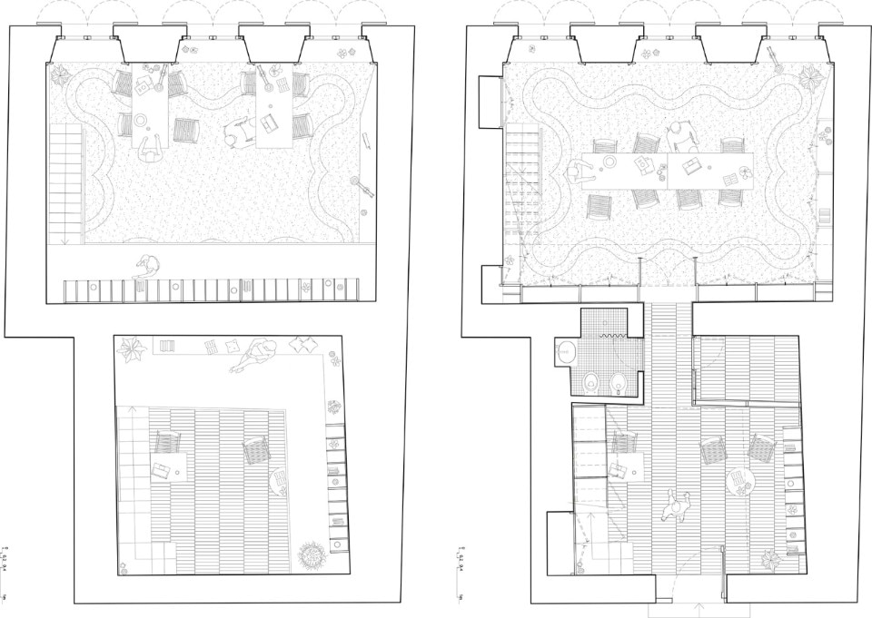
L'intervento di riuso ha previsto il consolidamento murario delle sale d'epoca per accogliere la struttura di legno che si innesta lungo il perimetro interno.
Le stanze vengono letteralmente iniettate di legno di rovere attraverso un sistema di scale, librerie, contenitori e soppalchi che definiscono l'organizzazione degli spazi e dialogano con le finiture originali del palazzo settecentesco ricreando un'atmosfera intima e accogliente.
La fascia di servizi, nascosta in una boiserie continua, viene posizionata a spina tra le due sale e diventa piano di calpestio del mezzanino.
I nodi strutturali, i corrimano delle sopraelevazioni e le maniglie a lama degli arredi, tutti rigorosamente di metallo bianco scandiscono e connotano la struttura composita di legno.
