Lo studio di architettura Di Gregorio Associati ha completato un progetto residenziale che sorge nella campagna emiliana non lontano dagli Appennini. Monticello unisce il passato e il presente attraverso un intervento che lascia, esternamente, la struttura originaria intatta, ampliandola con cornici di cemento che rimangono però separate dai muri di mattoni pre-esistenti. Si originano così dei vuoti che “rappresentano idealmente le relazioni intime tra il passato, il presente e il futuro”, come spiega l’architetto Francesco Di Gregorio.
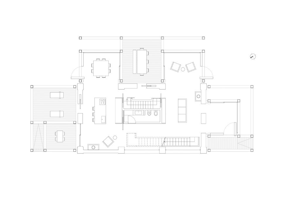
Le cornici giocano nello spazio antistante l’edificio, delimitando nuovi spazi che diventano patii, pergolati o passaggi per l’accesso, inquadrando il paesaggio collinare. Le strutture che si vengono a creare occupano tre lati dell’edificio e servono da filtro tra l’esterno e l’interno, dove soffitti e pavimenti sono rivestiti di cemento e gli spazi sono divisi da arredi in legno di rovere che nascondono i servizi.
- Progetto:
- Monticello
- Luogo:
- Parma, Italia
- Programma:
- Edificio residenziale
- Architetti:
- Di Gregorio Associati
- Design team:
- Umberto Marossa, Stefano Montanari, Anna Maria Luvoni
- Struttura:
- Paolo Sorba - A.I.Erre Engineering
- Piante :
- Studio Nocera
- Paesaggio:
- Alessandra Serri - Mamalab
- Area:
- 330 mq
- Completamento:
- 2019
