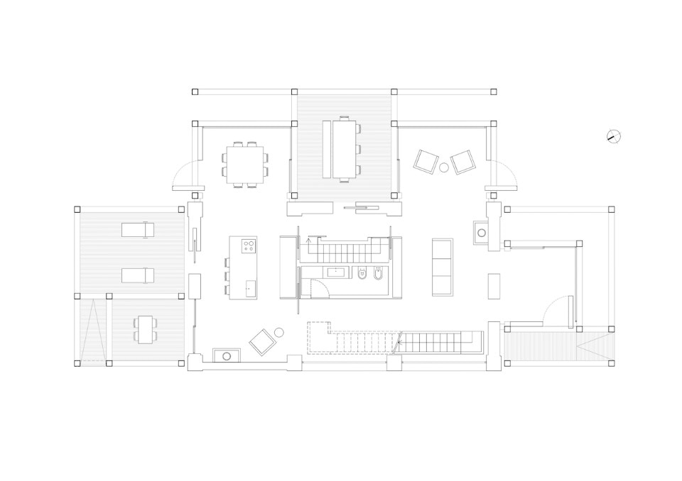
Di Gregorio Associati architectural firm has completed a residential project in the Emilian countryside not far from the Apennines. Monticello unites the past and the present through an intervention that leaves the original structure intact on the outside, expanding it with concrete frames that remain separated from the pre-existing brick walls. The result is voids that “ideally represents the intimate relations between past, present and future”, as architect Francesco Di Gregorio explains.
The frames play in the space in front of the building, delimiting new spaces that become patios, pergolas or access passages, and framing the surrounding. The structures occupy three sides of the building and serve as a filter between the outside and the inside, where ceilings and floors are covered with exposed reinforced concrete and spaces are divided by oak furniture that hide all the facilities.
- Project:
- Monticello
- Location:
- Parma, Italy
- Program:
- Residential building
- Architects:
- Di Gregorio Associati
- Design team:
- Umberto Marossa, Stefano Montanari, Anna Maria Luvoni
- Structure:
- Paolo Sorba - A.I.Erre Engineering
- Plants:
- Studio Nocera
- Landscape:
- Alessandra Serri - Mamalab
- Area:
- 330 sqm
- Completion :
- 2019
