Quando e come è iniziato il vostro sodalizio professionale?
Ci siamo conosciuti a Parigi, lavorando nel medesimo studio di architettura. Poi, nel 2003 abbiamo ottenuto una borsa di studio di sei mesi per andare a Tokyo e siamo partiti per il Giappone. Questo viaggio ci ha affascinato e ci fatto scoprire un universo urbano meraviglioso, ma soprattutto ci ha regalato tantissima energia e voglia di fare. Tornati a Parigi, abbiamo cominciato a lavorare insieme e nel 2007 abbiamo fondato il nostro studio.
Avete scelto come nome 'Bruther': come mai?
Contraendo semplicemente i nostri cognomi: Bru e Theriot. Abbiamo voluto sottolineare un approccio 'collettivo' ancora prima di associare il nome dello studio alle nostre persone. C'è solo una semplice allusione... ma quello che più ci piace è quando ci chiedono come si pronuncia “the”.
View gallery
Studio Bruther, Cultural and Sports Center. Parigi, Francia.
Foto courtesy Studio Bruther
Studio Bruther, Cultural and Sports Center. Parigi, Francia.
Foto courtesy Studio Bruther
Studio Bruther, Cultural and Sports Center. Parigi, Francia.
Foto courtesy Studio Bruther
Studio Bruther, Cultural and Sports Center. Parigi, Francia.
Foto courtesy Studio Bruther
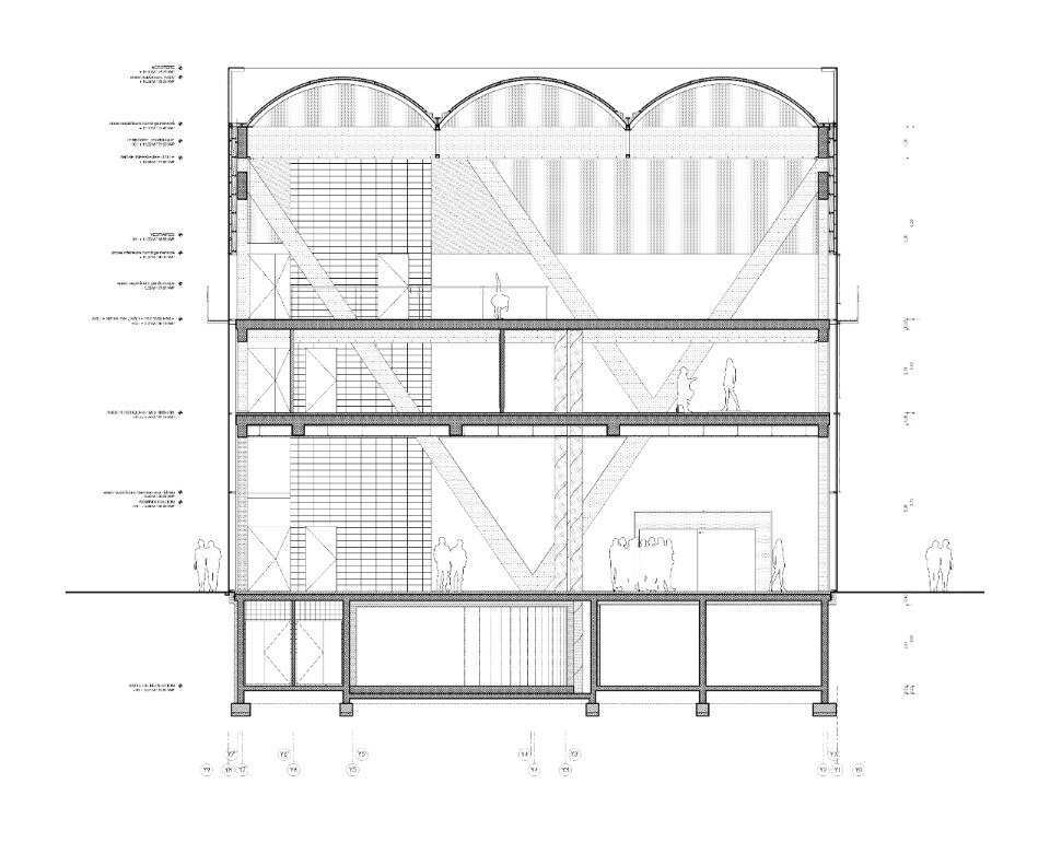
Studio Bruther, Cultural and Sports Center (Sezione). Parigi, Francia.
Courtesy Studio Bruther
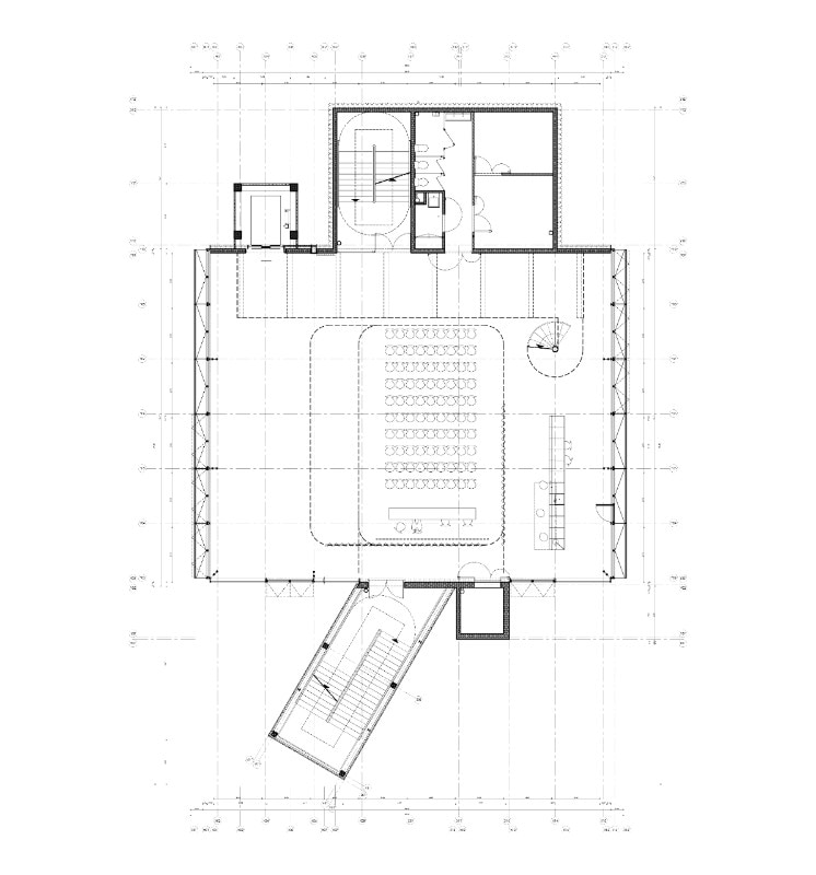
Studio Bruther, Cultural and Sports Center (Planimetria). Parigi, Francia.
Courtesy Studio Bruther
Studio Bruther, New Generation Research Center (Sezione). Caen, Francia.
Courtesy Studio Bruther
Studio Bruther, New Generation Research Center (Planimetria). Caen, Francia.
Courtesy Studio Bruther
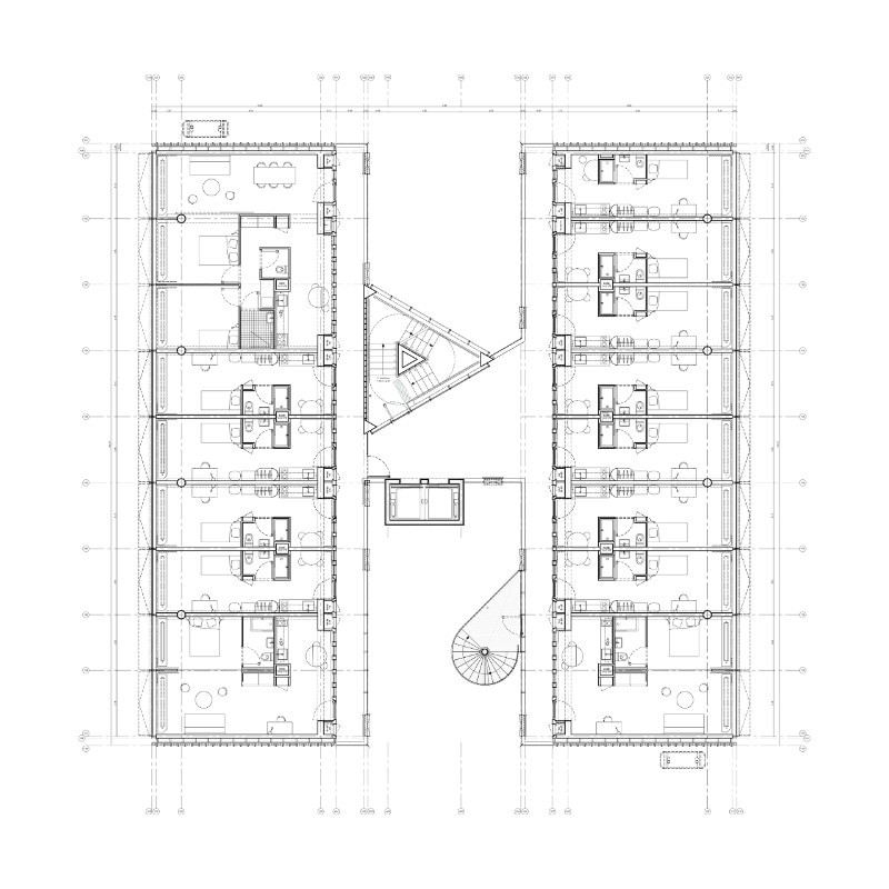
Studio Bruther, Residence for Researchers. Cité internationale universitaire de Paris, Francia.
Courtesy Studio Bruther
Studio Bruther, Residence for Researchers. Cité internationale universitaire de Paris, Francia.
Courtesy Studio Bruther
Studio Bruther, Residence for Researchers. Cité internationale universitaire de Paris, Francia.
Courtesy Studio Bruther
Studio Bruther, Residence for Researchers. Cité internationale universitaire de Paris, Francia.
Courtesy Studio Bruther
Studio Bruther, Residence for Researchers (Sezione). Cité internationale universitaire de Paris, Francia.
Courtesy Studio Bruther
Studio Bruther, Cultural and Sports Center. Parigi, Francia.
Foto courtesy Studio Bruther
Studio Bruther, Cultural and Sports Center. Parigi, Francia.
Foto courtesy Studio Bruther
Studio Bruther, Cultural and Sports Center. Parigi, Francia.
Foto courtesy Studio Bruther
Studio Bruther, Cultural and Sports Center. Parigi, Francia.
Foto courtesy Studio Bruther
Studio Bruther, Cultural and Sports Center (Sezione). Parigi, Francia.
Courtesy Studio Bruther
Studio Bruther, Cultural and Sports Center (Planimetria). Parigi, Francia.
Courtesy Studio Bruther
Studio Bruther, New Generation Research Center (Sezione). Caen, Francia.
Courtesy Studio Bruther
Studio Bruther, New Generation Research Center (Planimetria). Caen, Francia.
Courtesy Studio Bruther
Studio Bruther, Residence for Researchers. Cité internationale universitaire de Paris, Francia.
Courtesy Studio Bruther
Studio Bruther, Residence for Researchers. Cité internationale universitaire de Paris, Francia.
Courtesy Studio Bruther
Studio Bruther, Residence for Researchers. Cité internationale universitaire de Paris, Francia.
Courtesy Studio Bruther
Studio Bruther, Residence for Researchers. Cité internationale universitaire de Paris, Francia.
Courtesy Studio Bruther
Studio Bruther, Residence for Researchers (Sezione). Cité internationale universitaire de Paris, Francia.
Courtesy Studio Bruther
Qual è la vostra idea di architettura? Vince l'etica o l'estetica?
Con i nostri progetti cerchiamo di migliorare la qualità della vita delle persone, rendedendola più gratificante e libera. Il nostro lavoro è tanto politico, cioè socialmente impegnato e responsabile, quanto estetico, e quindi, sensibile alla bellezza. Partiamo sempre dalla comprensione di quelli che sono i bisogni concettuali e costruttivi per poi aprirci con modalità, anche inaspettate, a nuove aree di sperimentazione.
Chi ha avuto maggiore influenza sulla vostra idea di architettura?Da questo punto di vista siamo delle vere e proprie 'spugne': possiamo trarre inspirazione da un quadro di Andy Warhol o da una canzone di David Bowie... Ma se dobbiamo stare nel nostro campo, ci vengono in mente Aldo Van Eyck o Cedric Price o, ancora Lacaton-Vassal (il duo è stato rentemente insignito del Pritzker Prize, ndr).
La pandemia ha sicuramente portato l'attenzione di molti progettisti sulla necessità di costruire in modo più responsabile e sostenibile. Qual è il vostro punto di vista su questo tema?
I nostri lavori suggeriscono un delicato equilibrio tra strategia e forma, rigore e libertà, specificità e genericità, immediatezza e istanza evolutiva. L'obiettivo è costruire infrastrutture aperte, immaginandone già il loro sviluppo futuro. Insomma, si tratta di leggere la ricchezza di uno specifico contesto per programmare edifci altamente flessibili, capaci di stimolare usi e funzioni sempre più ampie.
Quali sono secondo voi le modalità costruttive e i materiali che possono rendere l'architettura più responsabile? Volete farci degli esempi?
A noi interessa riflettere e discutere su come economizzare la materia, piuttosto che offrire un semplice elenco di materiali. Ci chiediamo: 'Come può un materiale essere 'efficiente' e stimolare il design di un edificio che funzioni come una macchina altamente 'performante?'. Ecco, per noi rispondere a questo quesito è prioritario.
Parliamo di città. Nei vostri progetti avete sempre posto grande attenzione alle periferie, come del resto lo stesso Swiss Architectural Award 2020 vi ha riconosciuto. Perchè secondo voi il 'progetto' delle aree più marginali della città può essere strategico?
Amiamo le periferie perché secondo noi sono 'un terreno di gioco', un'occasione di trasformazione. E poi perchè evocano la parola 'energia': parliamo di quella forza nuova e vitale che avevamo trovato nel nostro viaggio in Giappone, all'inizio della nostra attività, ma anche nei luoghi della nostra infanzia... Bene, anche qui, nelle banlieue parigine, in questi luoghi difficili e spesso dimenticati, abbiamo ritrovato un terreno fertile per essere 'architetti' e 'cittadini' insieme: qui, l'architettura può ridefinire gli imperativi della qualità abitativa, quale patrimonio di tutti; qui, l'architettura può indirizzare nuove attenzioni e responsabilità.
Siete rimasti sorpresi di questa vittoria?
In tutta sincerità sì, non ci aspettavamo di vincere, soprattutto dopo aver visto la short list dei candidati, progettisti bravissimi, di grande qualità.... Abbiamo appreso la notizia con grande entusiasmo: è un passo importante per il nostro percorso professionale di architetti.
Il merito dello studio parigino è stato quello di riuscire a dare forma espressiva ai materiali, alla luce, alla trasparenza, in altre parole alla bellezza, in contesti di margine, spesso con budget ridotti - Mario Botta
Tre i progetti su cui la Giuria ha concentrato il suo interesse, decretando il vostro successo: il Centro culturale e sportivo Saint-Blaise, Parigi (2010-2014), il New Generation Research Center, Caen (2013-2015) e la Residenza per ricercatori universitari “Maison Julie-Victoire Daubié”, Parigi (2014-2018). Che cosa hanno in comune? E qual è quello che vi ha dato più soddisfazione e perchè?Si tratta dei nostri più recenti lavori, ma noi li vediamo come un unico progetto... L'approccio, infatti, è il medesimo: partire dalla struttura come condizione primaria che dà forma alla tipologia spaziale e lavorare sulla coabitazione delle differenze. Una volta realizzatii, questi edifici 'equipaggiano' la città, cioè la arricchiscono di nuovi valori, trasformandola!
Pubblico e privato. Come conciliare obiettivi diversi quando si progetta per la città?
Oggi lavoriamo per il pubblico ma anche sempre di più per committenti privati. Dobbiamo adattarci al loro modello economico, senza andare a scalfire la nostra integrità. Sta a noi dimostrare la rilevanza delle nostre idee.
All'attività professionale affiancate anche la didattica. Ritenete importante agire su entrambe le direzioni e perchè?
L'insegnamento è una leva fantastica per confrontare il nostro pensiero con le giovani generazioni. Un incontro davvero irrinunciabile per non perdere mail il riferimento con la realtà.
Tre parole chiave per riassumere l'architettura del futuro?
Ottimismo, attivismo e altruismo. Sempre con il costante desiderio di aprire nuove strade al pensiero e alla pratica progettuale.
Immagine di apertura: Cultural and Sports Center, studio Bruther. Courtesy studio Bruther
