Un rapporto intimo con la natura e la connessione tra spazi interni ed esterni: sono le caratteristiche principali del progetto di Paz Arquitectura per La Cabañita, una residenza immersa nella vegetazione a Guatemala City. Il complesso si sviluppa attorno a una piccola capanna costruita nel 1965, con un classico tetto a falde e una piattaforma di base a sbalzo sulla collina. 30 anni dopo, il progetto si espande con altre strutture che dialogano con il linguaggio dell’edificio esistente. Il tetto dei due nuovi blocchi hanno infatti la stessa inclinazione di quello esistente, ma sono rovesciati, acquistando un’identità propria.
Galleria
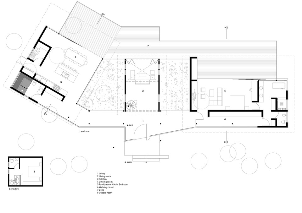
Le parti della casa non sono parallele tra di loro, per seguire la topografia della collina. Tra i blocchi sono stati lasciati degli interstizi per creare scorci sul paesaggio. Un corridoio trasparente unisce i tre volumi, permettendo una forte relazione con la natura. I materiali utilizzati per la costruzione sono metallo, legno e vetro. I nuovi moduli, come anche la capanna esistente, dispongono di una piattaforma più larga rispetto alla base della superficie coperta. Gli spazi esterni sono tutti interconnessi tra di loro, in modo da non definire percorsi specifici e permettere una mobilità fluida.
- Progetto:
- La Cabañita
- Tipologia:
- casa unifamiliare
- Architetto:
- Paz Arquitectura – Alejandro Paz
- Impianti:
- PTS, Conarq
- Strutture:
- Inegsa
- Superficie:
- 415 mq
- Completamento:
- 2018
