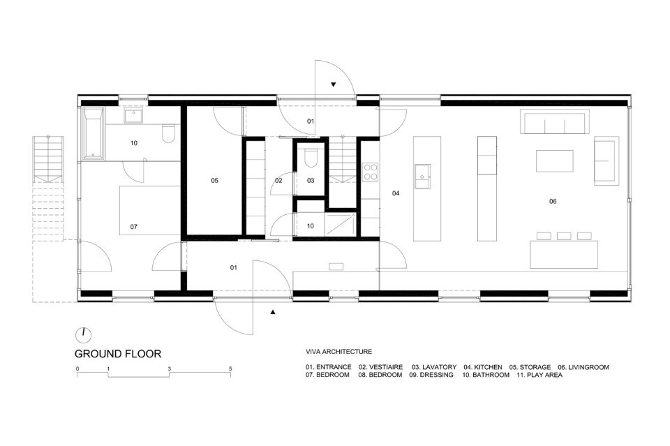
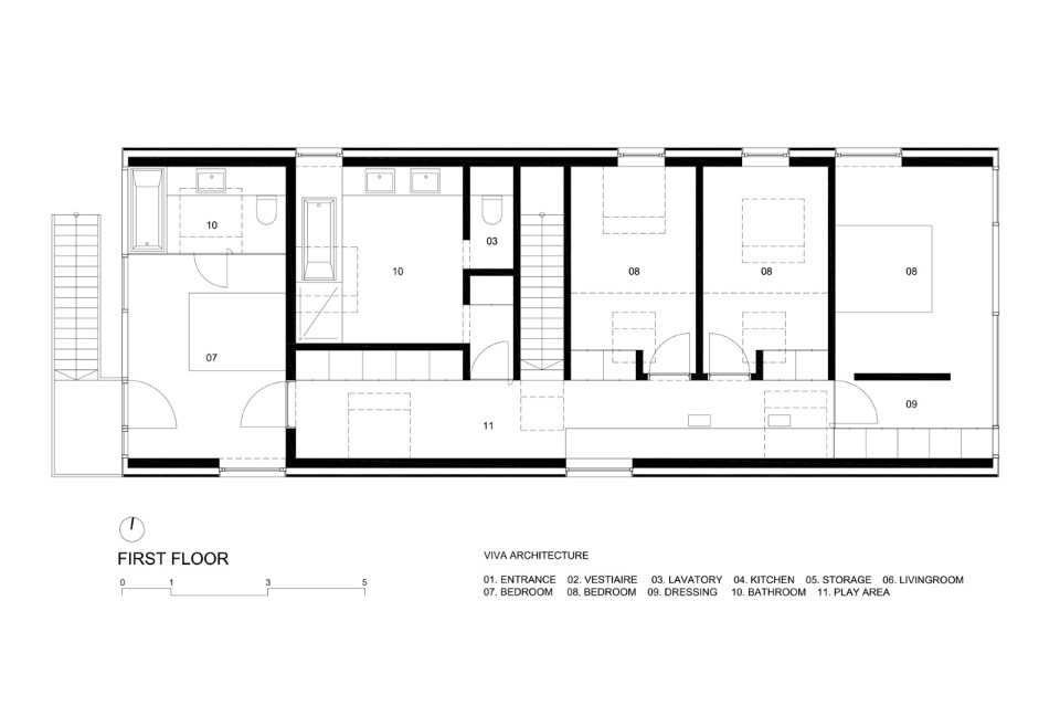
Galleria
Come in una classica fattoria, il tetto è coperto da tegole di argilla. In questo caso il materiale continua anche nella facciata verticale, che si apre con finestre quadrate di tre diverse dimensioni. I lati corti dell’abitazione sono trattati come un piano di taglio e rivestiti con pannelli di alluminio e vetri.
Dear farm, Baarle-Nassau
Tipologia: fattoria
Architettura: Viva Architecture
Area: 250 mq
Completamento: 2016
