View gallery
As with a classic farmhouse, the roof is covered with clay tiles. In this case, they continue as a facade material and are perforated by square windows in three different sizes. The short ends of the house are treated as a cutting plane and finished with glass and aluminum panels. This reinterpretation emphasizes the prototypical design of a house.
Dear farm, Baarle-Nassau
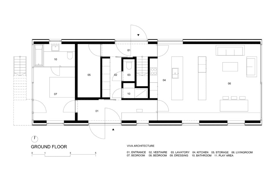
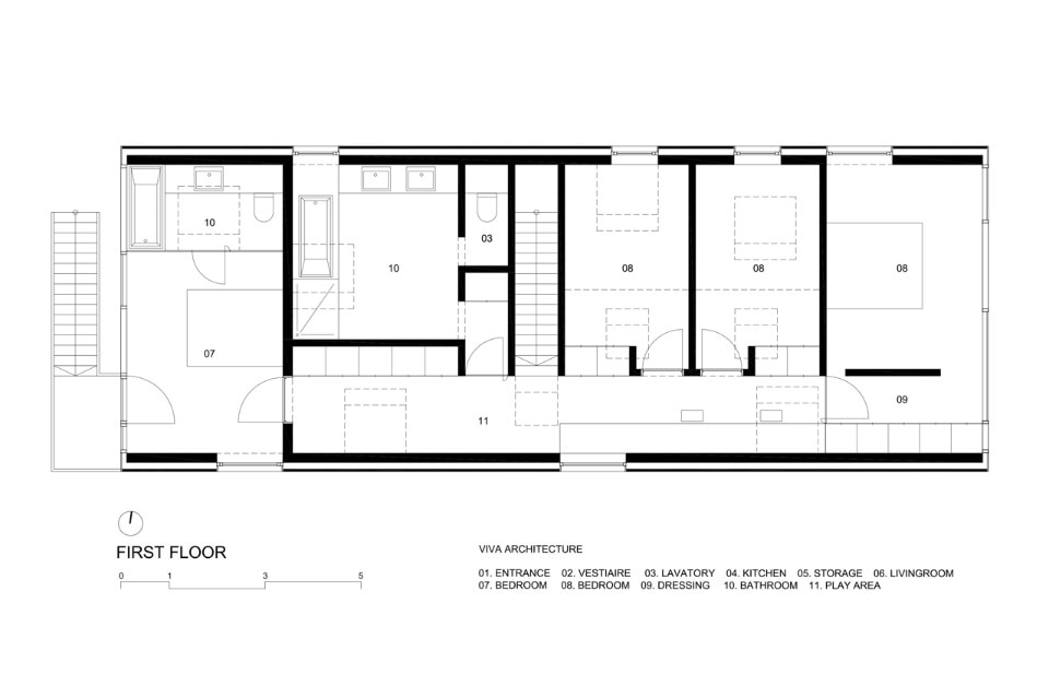
Program: farmhouse
Architect: Viva Architecture
Surface: 250 sqm
Completion: 2016
