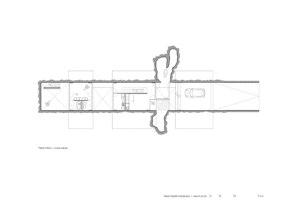
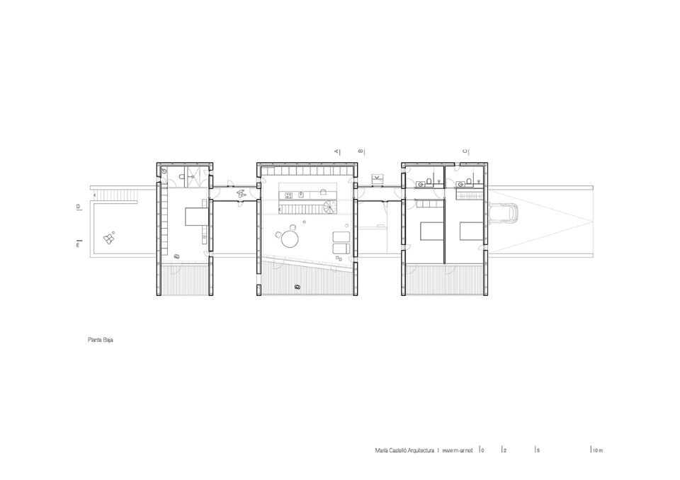
The intervention by Marià Castelló Martínez in the Formentera island, Spain, offers a house for a family sensitive to the environment, which program is divided into three light modules built in dry construction systems and a cavity made by subtraction of material on the lower floor. This longitudinal disposition gives place to full-empty successions, patios, connecting walkways, transverse views and a place created by time and discovered by surprise: a natural cave in the main access courtyard, which was integrated to the project during the process of construction.
View gallery
The quality of the used materials and their unions has played an important role in the process of creation and realisation of the project. Bioconstruction criteria has given preference to natural materials and if possible from the construction place: sculpted rock, crushed gravel from the excavation, Capri limestone, pine and fir wood, recycled cotton panels, white marble, high permeability silicate paint, etc. At the environmental level, the design provides passive bioclimatic systems of proven effectiveness in this climate, as well as water self-sufficiency thanks to a large volume rainwater cistern that reuses rainwater.
View gallery
/Users/estudiEPDSE/Desktop/0709_CPFE/180212_CPFE PUBLICACIÓ.dwg
/Users/estudiEPDSE/Desktop/0709_CPFE/180212_CPFE PUBLICACIÓ.dwg
/Users/estudiEPDSE/Desktop/0709_CPFE/180212_CPFE PUBLICACIÓ.dwg
/Users/estudiEPDSE/Desktop/0709_CPFE/180212_CPFE PUBLICACIÓ.dwg
/Users/estudiEPDSE/Desktop/0709_CPFE/180212_CPFE PUBLICACIÓ.dwg
/Users/estudiEPDSE/Desktop/0709_CPFE/180212_CPFE PUBLICACIÓ.dwg
/Users/estudiEPDSE/Desktop/0709_CPFE/180212_CPFE PUBLICACIÓ.dwg
- Project:
- Bosc d’en Pep Ferrer
- Location:
- Playa de Migjorn, Formentera, Spagna
- Program:
- casa unifamiliare
- Architect:
- Marià Castelló Martínez
- Engineering:
- Agustí Yern Ribas
- Structural engineering:
- Miguel Rodríguez Nevado, Ferran Juan
- Installations:
- Javier Colomar Riera
- Collaborators:
- Marga Ferrer, Natàlia Castellà, Lorena Ruzafa e Elena Vinyarskaya
- Area:
- 243 sqm
- Completion:
- 2017
