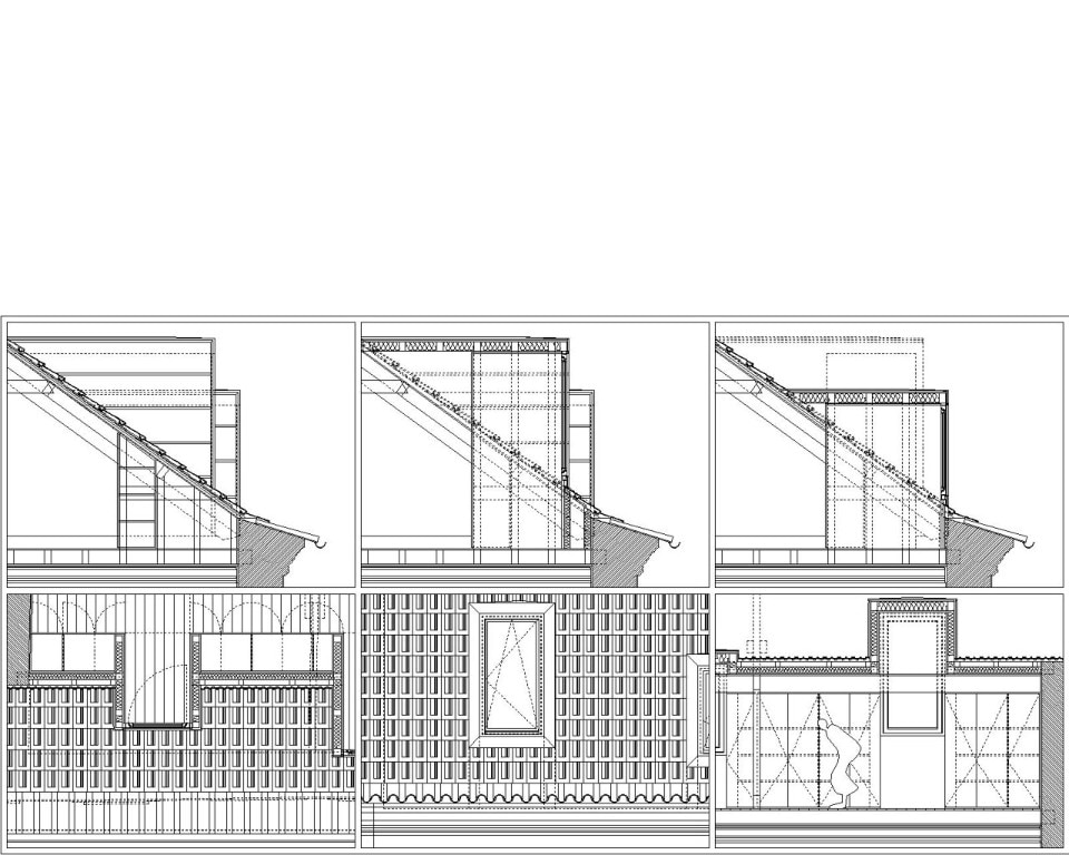
Portuguese architect Nelson Resende renovated a historical house in Rua Dr. José Falcão, in Ovar, south of Porto. The building featured different states of conservation, that easily led to what had to be preserved and discarded in order to uniformity and coherence between the old and the new.
View gallery
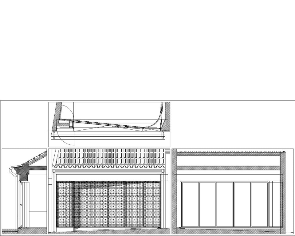
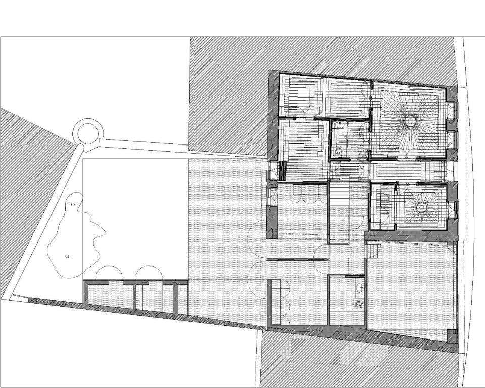
Located in a structural artery of the city of Ovar the building allows the repetition of an urban model of frequent use, that favors a peripheral occupation of the blocks and liberates its interior. In this setting, both the addition and the main house present a logic of implementation supported by two main elevations: one more formal and representative facing the street, the second more private and uncommitted facing the backyard.
View gallery
View gallery
The existing layout has been maintained, taking into account its states of degradation. The spaces of social use and of longer permanence are destined to the main volume allowing to take advantage of the existing compartments. Complementarily, the secondary volume hosts the garage space facing the street and the private area facing the garden. The attic has been kept free, so to be used as a multipurpose space.
- Project:
- Casa Ovar
- Location:
- Ovar, Portugal
- Program:
- Single family house
- Architect:
- Nelson Resende
- Structural engineering:
- João Almeirante
- Electrical engineering:
- Nuno Leite
- Main contractor:
- António Souto
- Area:
- 216 sqm
- Completion:
- 2017
