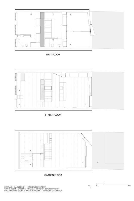
ATKA arquitectos has renovated an apartment in Porto. Due to the excessive deformation, structural parts, trusses, boards, partitions and staircases of wood have been detached from the core of the house. Externally, a monolithic block of concrete is presented, drawn to the similarity of a granite mass, with the marked imprints of the texture of the pine boards, and standing out two black triangles of its composition.
View gallery
The interior space is designed with simplicity and contrasts of grey and black colors, between the planes of pine boards and laminated joists that make the structure of the floors. A staircase trims in curve a wooden slat plane that interposes in space, but before that, what precedes it is a transversal gap, a void of 8 meters of height and the total width of the house, that is characterized for having white and reflecting surfaces where solar light moves crossing its different levels.
- Project:
- House S
- Program:
- apartment
- Location:
- Porto
- Architect:
- Patrícia Moreno and Diogo Paradinha – ATKA arquitectos
- Area:
- 187 mq
- Completion:
- 2017
