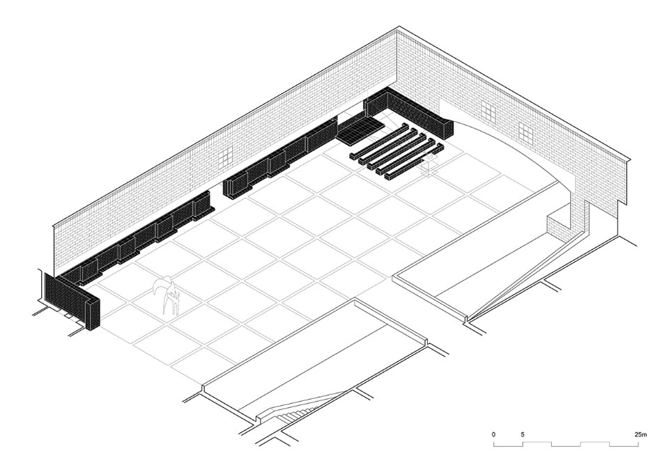
The construction of an object suitable for screening an open-air cinema programme was the pretext for transforming the Belém Cultural Center Square, in Lisbon (Manuel Salgado and Vittorio Gregotti, 1992), into a living space for the thousands of people who visit the CCB during the summer months. We designed a wall in black cork, creating a paneling-like lining along the south wall which stays in the shade for nearly the whole day, integrating a bench, cool and comfortable, that allows one to contemplate the urban spectacle of the movement in the square.
View gallery
The cork wall is itself a modulated wall whose internal metrics establish a rhythm that keeps in step with the metrics that govern the architecture of the CCB, and whose height is that of the base of the existing concrete arch, giving a human scale to the entire square. At the western end, the wall turns and closes the existing pathway, making a corner where it is possible to watch the films sheltered from the wind, at night. The material qualities of cork thus means that the transformation of the square is not only about experiencing its new scale, but also about perceiving its materiality. By joining the solid blocks of cork, whose color is made of a thousand brown tones that change over time and with a texture that is rude, soft and warm all at once, the slabs of cleft limestone that clad the walls of the CCB building became lighter, more fragile.
- Project:
- A square in summer
- Location:
- Lisbon
- Architect:
- José Neves
- Collaborators:
- Diogo Amaro, Apolinário Silva
- Graphic design:
- Atelier Pedro Falcão
- Curator:
- André Tavares
- Client:
- Garagem Sul – Centro Cultural de Belém
- Completion:
- 2017
