Galleria
La struttura di legno perforata e la ringhiera della nuova scalinata lasciano passare luce e aria in una configurazione più compatta. Tracce di dialoghi e di scambi di e-mail tra il cliente e l’architetto sono stati incisi sul corrimano, suggerendo una scala supportata da un pizzico di contemporaneità.
Galleria
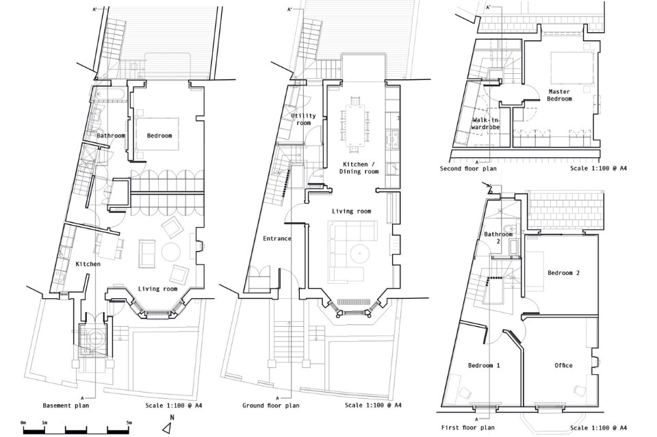
Il guardaroba di Marie, Londra, UK
Tipologia: ristrutturazione
Architetti: Tsuruta Architects
Area: 214 mq
Completamento: 2016
