Galleria
\\Stora\mycomputers\nabitoblackbox\2014\1424_Zapateria_calle-bruc-126_BCN\1424_03 Architectural Design\04_doc graphic\dwg\1424_
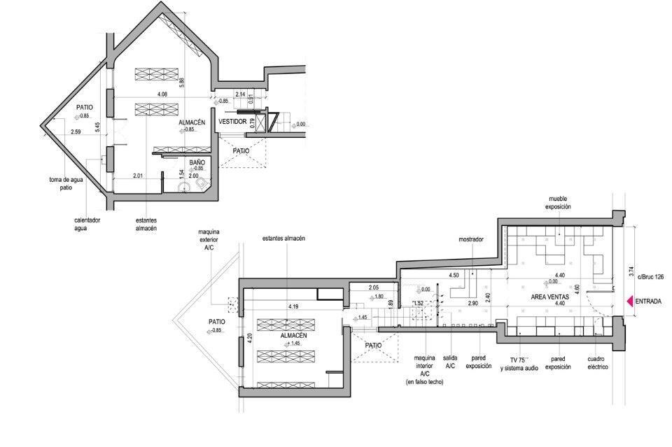
Nábito architects, Little shoes, Barcellona, Spagna. Sezioni
Little shoes, Barcellona, Spagna
Tipologia: negozio
Architetti: Nábito architects
Area: 100 mq
Completamento: 2015
