The grid is a metaphor for kids notebook generally used to order letters, numbers and drawings. In this case the grid is a guide and a support to order the product. The atmosphere reminds a preadolescent school ambient where duty (grid) and play (cubes composition) are calibrated together with decoration.
The curtains have been chosen for its particular softness and texture to evoke the warmth of childhood. The result is a synthetic simple space, essential, ordered and pragmatical.
View gallery
\\Stora\mycomputers\nabitoblackbox\2014\1424_Zapateria_calle-bruc-126_BCN\1424_03 Architectural Design\04_doc graphic\dwg\1424_
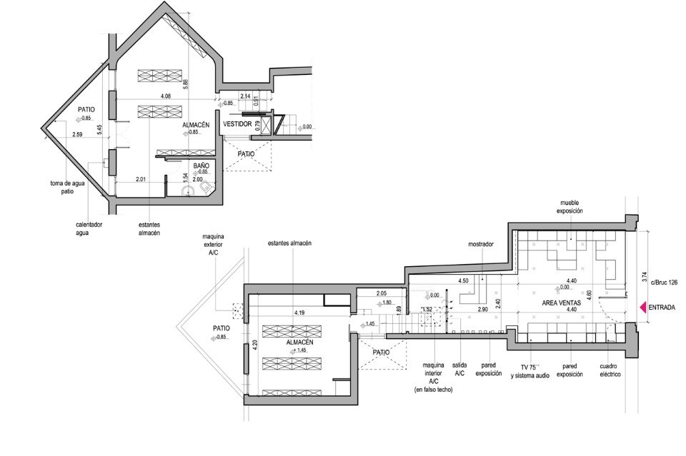
Nábito architects, Little shoes, Barcelona, Spain. Sections
Little shoes, Barcelona, Spain
Program: shop
Architects: Nábito architects
Area: 100 sqm
Completion: 2015
