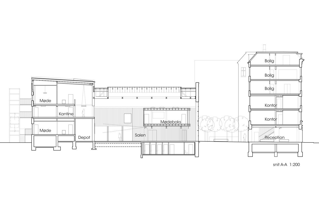
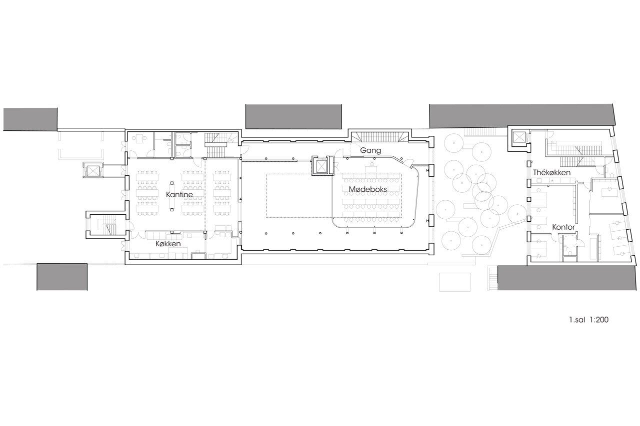
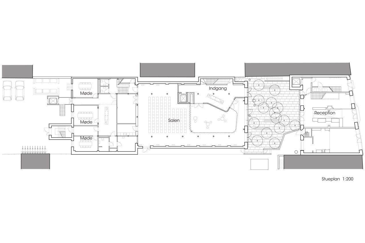
La hall a tripla altezza del Valencia è uno spazio unico nel quartiere denso di Vesterbro. La grande sala con il lucernario continuo si posiziona come una struttura indipendente dietro l’edificio anteriore. Dal salone si accede alla lobby attraverso il giardino, filtro per lo spostamento spaziale. La sala è lo spazio centrale del progetto e ospita corsi e conferenze e altre attività degli avvocati danesi. La sala ospita un mobile, i sistemi di distribuzione verticale tra piano seminterrato, piano terra e primo piano e un box sospeso in connessione visiva con la hall.
Le pareti esistenti sono state mantenute e rinnovate il più delicatamente possibile. Il box è rivestito con profili in alluminio speciali e da tessuti per lo smorzamento acustico. I pavimenti e il soffitto della sala sono stati progettati nel modo più neutrale possibile, in cemento e intonaco fonoassorbente. All’interno del box tutte le superfici sono dipinte di giallo per evidenziare la nuova spaziosità e creare una gerarchia spaziale leggibile.
Il volume posteriore offre piccole unità utilizzate come spazi secondari, come sale di incontro per piccoli gruppi, mensa e cucina.
Valencia, Copenaghen
Tipologia: ufficio
Architetti: Dorte Mandrup Arkitekter
Impresa: Jönsson A/S
Ingegneria: Jørgen Nielsen advising engineers (costruzione), JJ Byg (impianti)
Paesaggio: DMA & 1:1 Landskab
Area: 2.420 mq
Completamento: luglio 2014
