Fotografia di Masao Nishikawa
Nei villaggi coreani, gli alberi sono considerati i protettori di case e abitanti. A loro ha pensato l’artista statunitense Hilton McConnico nel progettare il piccolo museo ospitato nella Maison Hermès di Seoul, inaugurata lo scorso novembre a Dosan Park, il più lussuoso quartiere della capitale sudcoreana. Il nuovo edificio, concepito dallo studio parigino RDAI, l’agenzia di architettura di Rena Dumas, ospita, oltre al grande negozio, gli uffici, uno spazio per l’arte contemporanea (la prima mostra era un’installazione di Daniel Buren), un caffè di lettura e un piccolo museo dove è esposta una selezione di oggetti legati al viaggio, collezionati nel tempo dai proprietari della Maison. Oggetti curiosi che Hilton McConnico ha trattato in modo davvero originale, collocandoli all’interno di tronchi stilizzati rivestiti interamente di striscioline di pelle colorata, preziosa ‘corteccia’ resa possibile dalla perizia degli artigiani Hermès.
Collocato nel piano interrato dell’edificio, al cui centro si sviluppa, per tutta la sua altezza, un giardino segreto allestito da Louis Benech, il museo ha un sorprendente soffitto a specchio: entrarvi è come immergersi in una foresta incantata, di cui non si percepisce immediatamente il significato. Le nicchie che contengono gli oggetti non sono, infatti, visibili all’ingresso. Solo addentrandosi tra gli alberi è possibile scoprire gli ‘ospiti’: la collezione si coglie nella sua interezza quando ci si volge indietro, percorrendo a ritroso lo spazio verso l’uscita. Hilton McConnico, americano di nascita parigino di adozione, è un artista eclettico (pittore, fotografo, film maker, scenografo, designer) che ha da tempo legato il proprio nome alla casa francese: il suo contributo è presente anche nella Maison Hermès di Ginza a Tokyo, progettata da Renzo Piano e i cui interni sono stati curati da Rena Dumas.
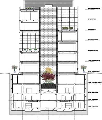
La Maison di Dosan Park è stata invece interamente progettata da RDAI; essa rappresenta il primo grande edificio realizzato da Rena Dumas e dal suo studio. “Nell’affrontare questo progetto mi sono sentita libera e al tempo stesso molto responsabilizzata. Ciò ha costituito una forte motivazione anche per il mio team”. Rena Dumas ha avuto a disposizione un lotto quadrato delimitato da strade su tutti i lati, fatto eccezionale per la città coreana. E il quadrato è diventato uno dei temi guida del progetto. “Poter pensare l’edificio come un volume completo, e non come una semplice facciata, è stato” dice Rena Dumas” un vero dono, oltre che un motivo di ispirazione progettuale. Il quadrato è una forma semplice, ma che consente un alto grado di libertà”. Tutto in questa Maison è in qualche modo guidato dal quadrato. Anche la mostra “Filtres colorés” allestita da Daniel Buren per l’inaugurazione dell’Atelier Hermès di Seoul (ricavato al primo piano della Maison)* ha proposto una variazione sul tema del quadrato.
L’installazione di Buren – la sua seconda personale in Corea – prevedeva 25 cornici, ciascuna contenente tre lastre quadrate di vetro colorato, dialoganti con la struttura dell’edifcio. Perché è in primo luogo il volume dell’edificio, un cubo scavato sui fianchi, ad essere ritmato dal quadrato: il fronte strada principale e i due lati presentano una facciata interamente di vetro, formata da moduli quadrati – o perlomeno percepiti tali: in realtà la struttura della facciata è costituita da rettangoli verticali – decorati a strisce dorate, sotto i quali si indovina un ulteriore reticolo quadrato. Tra le due superfici vetrate c’è un’intercapedine di 30 cm. Se la superficie esterna è dorata, la facciata interna è segnata da un sottile tratteggio bianco che dà ai moduli vetrati la parvenza (e la funzione) di un tendaggio. Ne deriva una trasparenza protetta, rispettosa dell’individuo, che permette la visibilità verso l’esterno e al tempo stesso impedisce di essere visti dall’esterno. In questa soluzione si può cogliere, come dice Rena Dumas, greca di nascita, un rimando all’architettura mediterranea, al claire-obscure, all’uso di persiane e grate che difendono dal sole e al tempo stesso consentono di guardare senza essere visti. La trasparenza diventa particolarmente scenografica di sera, quando l’illuminazione interna accende l’intera costruzione e la fa palpitare. “L’edificio è emozionante, dà gioia alla gente perché è luminoso. Per me la luce è materia e strumento del progetto, ma mi piace che penetri in modo non aggressivo”.
Infatti la luce naturale entra sino al cuore di questo edificio, la cui apparente compattezza nasconde un vuoto che lo percorre a tutta altezza, sino al piano interrato, dove si trovano il Cafè Madang, una biblioteca specializzata in argomenti equestri e un caffè riservati ai clienti, e il Promenade Museum, allestito da Hilton McConnico, nel quale è esposta una piccola parte della Émile Hermès Collection. Il cortile interno, intuibile dalla presenza sulle facciate laterali dell’edificio di due profondi e differenti tagli verticali con relative terrazze, svolge il duplice ruolo di giardino segreto e di medium: due delle sue pareti sono trasparenti e permettono la comunicazione tra i vari piani dell’edificio. Alla trasparenza si contrappone la compatta e sensuale ruvidezza delle altre due pareti, in pietra lavorata a mano, la stessa impiegata per rivestire la quarta facciata dell’edificio, il suo retro. La texture della pietra ripropone, in forma tridimensionale, la decorazione a strisce delle facciate vetrate. Il cortile interno e la sua vegetazione autoctona sono visibili anche dalle terrazze, poste a due differenti livelli, e dal tetto-giardino. Rena Dumas ama i materiali, quelli naturali come quelli derivanti da nuove tecnologie, usati in modo sensibile e intelligente; ritiene che la loro conoscenza sia fondamentale per qualsiasi progetto, sin dall’inizio. Disegnare un oggetto e sapere da subito in quale materiale sarà realizzato è rassicurante, toglie ansia al lavoro del progettista. Ama sperimentare come materiali diversi possano lavorare insieme, combinando colore e texture. Così come ama progettare le scale: quella elicodale che unisce il piano interrato al secondo piano nella Maison di Dosan Park è un vero esercizio di bravura. Il corrimano rivestito di pelle imprime un’ulteriore firma Hermès all’intero progetto.
Architectural Conception:
Rena Dumas Architecture Interieure (Architects: Rena Dumas, Denis Montel & Nicolas Karmochkine, Thodoris Zoumboulakis. Assistant Architects: Jean-Francois Py, Dongha Kwak)
http://www.renadumas.com
Glass production consultant:
Techniques Transparentes (Guillame Saalburg)
Museum Design:
Hilton McConnico, Gwen Noury. Assistant: L'Eau Design, Yoojung Kim
Engineering and Design:
Ingerop (Alain-Pierre Grésil, Vincent Moraël, Valérie Seys), Kunwon Engineering (Youngjin Chung)
Façade Engineering:
Arnauld de Bussierre & Associés J&S Hanbaek (Bongsuk Chung)
Lighting:
Philippe Almon Concepteurs Lumière & Design (Philippe Almon, Mathieu Roncheau)
Landscaping:
Agence Benech (Louis Benech)
Maison Hermès Dosan Park
630-26 Shinsa Dong
Gangnam-Gu, Seoul 135-895
*Atelier Hermès ospita sino al 18 marzo 2007 la mostra riservata al concorso Hermès Missulsang 2006, promosso dalla filiale coreana della Maison. Dal 31 marzo al 24 maggio 2007 lo spazio sarà riservato all’artista Chung Seo Young
