Nei pressi del villaggio di Borová Lada, nel paesaggio maestoso della Selva Boema, Studio Plyš ha realizzato con un approccio delicato ma accattivante il retrofit di un cottage ottocentesco, sottoposto a molteplici manomissioni nel corso del XX secolo.
Rileggendo il naturale processo di stratificazione storica del fabbricato senza cancellarne la memoria, il progetto ha introdotto all’interno dell’involucro esistente un nuovo “livello” chiaramente leggibile di inserimenti volumetrici e strutturali, che va a ricomporre l’efficienza statica, funzionale ed energetica del cottage celebrandone la sopravvivenza nel tempo e riadattandolo con un tocco ludico e funzionale alle esigenze della vita contemporanea.
Rileggendo il naturale processo di stratificazione storica, un nuovo, leggibile ‘livello’ di inserimenti volumetrici e strutturali va a ricomporre l’efficienza statica, funzionale ed energetica del cottage, riadattandolo alle esigenze della vita contemporanea.
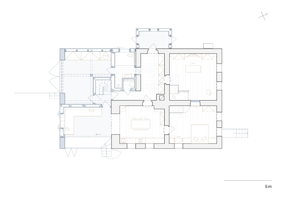
L’edificio si colloca in un’area punteggiata da storiche abitazioni per vacanze, lungo una strada che conduce nel cuore del bosco. All’esterno, mentre i fronti a nord-est e nord-ovest conservano la fisionomia originale con base in pietra e pareti intonacate, le facciate a sud-est e sud-ovest, in prossimità dell’ex corpo del fienile maggiormente compromesso dai precedenti interventi, riportano le tracce visibili del gesto contemporaneo: la struttura in cemento armato grezzo, perforata da due giocosi oculi e da ampi portali – a memoria delle aperture delle stalle – fa da supporto a pannelli in legno di larice scorrevoli, a protezione delle ampie vetrate e dell’intimità domestica, in dialogo materico e cromatico con il bosco. In copertura, la bordatura del tetto imita la “zmijovka”, il tradizionale berretto di lana indossato da secoli nella regione.
All’interno, le atmosfere morbide del cottage convivono con una palette materica di elementi ex novo che conferiscono un sapore vagamente industriale ma confortevole all’abitazione, mentre il nuovo layout consente un utilizzo flessibile dello spazio, con unità abitative eventualmente indipendenti su due livelli, e spazi condivisi collegati tramite una nuova scala.
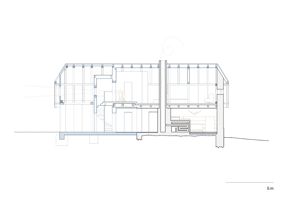
Al piano terra, un ambiente multifunzionale di accesso a doppia altezza – ottenuto dal sopralzo del fienile a sud-ovest, con orditura strutturale a vista che dichiara schiettamente la gerarchia degli elementi costruttivi – fa da filtro tra esterno ed interno riducendo la dispersione termica, e dà il benvenuto nell’abitazione anticipando la palette materica dei nuovi rivestimenti in legno, acciaio e fibrocemento.
Dall’ingresso, il salotto rivestito in compensato e irradiato di luce che filtra dagli oculi e dalle ampie vetrate scorrevoli accoglie in un ambiente essenziale ma confortevole e dal vivace tocco contemporaneo, in delicato contrasto conn l'adiacente cucina, situata nel nucleo storico, che preserva il fascino vernacolare dell'antico focolare tra pareti immacolate e rivestimenti ceramici decorativi.
Una cura meticolosa del dettaglio governa il progetto degli arredi: nella parte conservata della casa, la serie di mobili in rovere massello su misura “Bedřich“, in omaggio al bassotto del falegname, tra cui un tavolo da pranzo pieghevole, un letto e una panca, progettati con precisione ingegneristica, dialoga con i pezzi d'antiquariato restaurati.
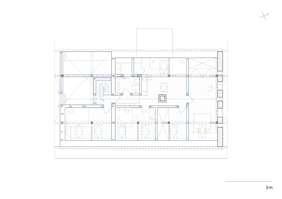
Al piano superiore, la nuova struttura a vista e i rivestimenti in pannelli di fibrocemento e compensato creano un secondo involucro interno all’intradosso della copertura (recuperata) e trasformano uno spazio prima inutilizzato in un nuovo piano abitativo, con una piccola cucina, una camera da letto e servizi. Per soddisfare al meglio le esigenze dell'abitare contemporaneo, il progetto recupera ogni singolo centimetro quadrato di superficie, dilatando funzionalmente lo spazio tra pareti attrezzate che nascondono armadi, spazi tecnici e di servizio mentre una palette di materiali caldi e naturali (dal pavimento e mobilio in legno, alle ceramiche di rivestimento del bagno) esalta il carattere domestico, seppure essenziale, degli ambienti.
Particolare attenzione è rivolta anche alla sostenibilità ambientale e all’efficienza energetica. La nuova struttura in legno nel sottotetto resta discosta dall’involucro esistente grazie a un’intercapedine termoisolante che ottimizza le prestazioni energetiche dell’involucro originale senza comprometterne la traspirabilità e la configurazione statica, preservando al contempo la leggibilità del processo evolutivo del fabbricato; una pompa di calore aria-acqua, integrata in un sistema centralizzato di domotica che controlla anche il resto dell'impianto elettrico, compresi gli oscuramenti esterni motorizzati, favorisce il benessere microclimatico interno riducendo i consumi.
- Progetto architettonico:
- Studio Plyš (Lenka Vávra, Petr Vávra)
- Collaboratori:
- Kateřina Vávrová
