Near the village of Borová Lada, in the majestic landscape of the Bohemian Forest, Studio Plyš has completed with a delicate yet captivating approach the retrofit of a 19th-century cottage that had undergone multiple alterations during the 20th century.
By reinterpreting the natural process of historical stratification of the building without erasing its memory, the project added a new, clearly visible “layer” of volumetric and structural elements to the existing shell, restoring the cottage’s static, functional and energy efficiency, celebrating its survival over time and adapting it with a playful and functional touch to the needs of contemporary life.
Reinterpreting the building’s natural process of historical stratification, a new, clearly legible layer of volumetric and structural additions restores the cottage’s structural, functional, and energy performance, adapting it to the demands of contemporary living.
The building is located in an area dotted with historic holiday homes, along a road that leads into the heart of the woods. Outside, while the north-east and north-west fronts preserve their original feature with stone bases and plastered walls, the south-east and south-west façades, corresponding to the former barn, the most compromised by previous interventions, bear visible traces of the contemporary intervention: the raw reinforced concrete structure, perforated by two playful oculi and large portals reminiscent of the openings of the stables, supports sliding larch wood panels, protecting the large windows and domestic privacy and creating a material and chromatic connection with the forest. On the roof, the bordering imitates the “zmijovka”, the traditional woolen cap worn for centuries in the region, bringing a sparkling twist to the vernacular.
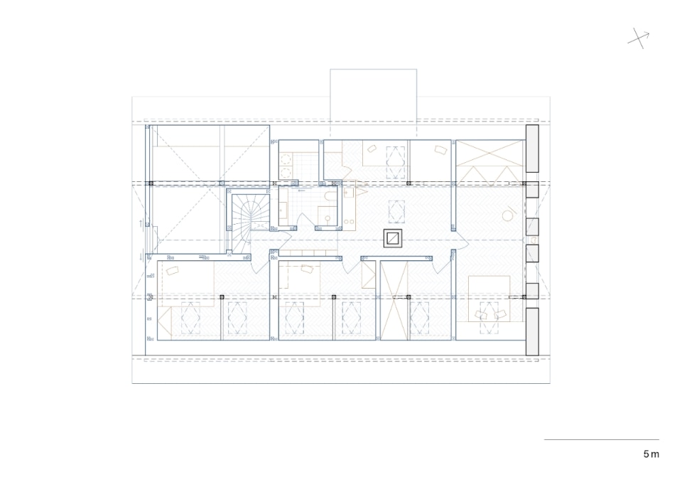
Inside, the cozy atmosphere of the cottage coexists with a material palette of new elements that give the home a vaguely “industrial” but comfortable feel, while the new layout allows for flexible use of space, with potentially independent living units on two levels and shared spaces connected by a new staircase.
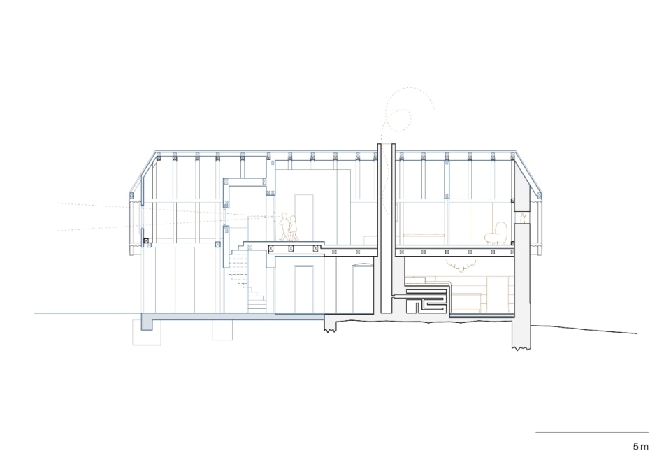
On the ground floor, a multifunctional double-height entrance area on the south-west side, resulting from the elevation of the barn, with exposed structural framework that clearly reveals the hierarchy of the construction elements, acts as a filter between the exterior and interior, reducing heat loss and welcoming visitors to the home, anticipating the material palette of the new cladding in wood, steel and fibre cement.
From the entrance, the living room, clad in plywood and flooded with light filtering through the oculi and large sliding windows, welcomes guests into a minimalist yet comfortable space with a lively contemporary touch, in delicate contrast to the adjacent kitchen, located in the historic core, which preserves the vernacular charm of the ancient hearth amid immaculate walls and decorative ceramic cladding.
Meticulous attention to detail characterizes the design of the furnishings: in the preserved part of the house, the series of custom-made solid oak “Bedřich” furniture, named after the carpenter's dachshund, including a folding dining table, a bed and a bench, designed with engineering precision, dialogue with the restored antiques.
On the upper floor, the new exposed structure and fibre cement and plywood panelling form a second interior shell beneath the restored roof, transforming a previously unused space into a new living area with a small kitchen, bedroom and bathroom. To best meet the needs of contemporary living, the project makes the best of every single square centimetre of surface area, functionally expanding the space beyond fitted walls that conceal wardrobes, technical and service areas, while a palette of warm, natural materials (from wooden flooring and furniture to ceramic bathroom tiles) enhances the domestic, albeit essential, character of the rooms.
Particular attention has also been paid to environmental sustainability and energy efficiency. The new wooden structure in the attic is separated from the existing building fabric by a thermal insulation cavity that optimises the energy performance of the historic structure without compromising its breathability and static configuration, whilst preserving the legibility of the building's evolutionary process. An air-water heat pump, integrated into a centralised home automation system that also controls the rest of the electrical system, including motorised external blinds, promotes internal microclimatic comfort while reducing consumption.
- Project:
- Borová Lada Cottage
- Architectural design:
- Plyš Studio (Lenka Vávra, Petr Vávra)
- Contributors:
- Kateřina Vávrová
