Ad Almargen, villaggio rurale nell’entroterra della provincia di Malaga, lo studio Crearctive ha realizzato un’abitazione unifamiliare che si iscrive nel tracciato del vernacolo mediterraneo, reinterpretandolo attraverso un lessico schiettamente contemporaneo.
In particolare, il progetto si inscrive nel solco della tradizione tipologica locale della casa compatta con corti interne (per ragioni climatiche, finalizzate a potenziare illuminazione interna e flussi di ventilazione incrociata), a cui lo studio apporta una gestualità contemporanea leggibile negli sfalsamenti volumetrici e negli interni luminosi e minimali che suggeriscono un calore domestico indifferente al superfluo.
Il progetto si inscrive nel solco della tradizione tipologica locale della casa compatta con corti interne, a cui lo studio apporta una gestualità contemporanea con sfalsamenti volumetrici e interni luminosi e minimali.
L’abitazione si inserisce in un quartiere edificato, incastonata in un tessuto edilizio minuto e di matrice consolidata, arretrata dalla strada in modo da lasciare il giardino con piscina come spazio di filtro tra esterno e interno.
Il volume su due piani e pianta ad L, con le sue geometrie essenziali, la copertura piana e le superfici bianche riecheggia il vernacolo e lo arricchisce col gioco dello sfalsamento del piano superiore in aggetto rispetto a quello sottostante, che segnala l’ingresso e traccia vivaci variazioni chiaroscurali.
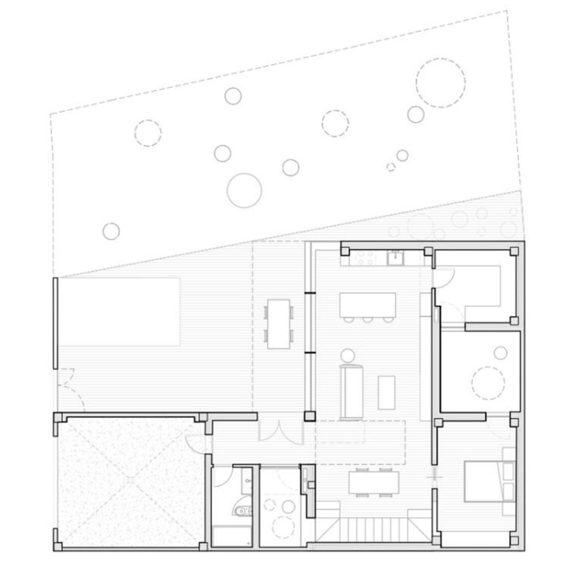
All’interno, gli spazi si snodano attorno a due piccoli patii piantumati (uno all’ingresso che illumina la scala, e uno a confine con il muro di cinta ad est) da cui filtrano ventilazione e luce naturale nelle profondità degli ambienti. All’intersezione dei due corpi ortogonali che compongono l’edificio, uno spazio a doppia altezza sormontato da un lucernario segnala come cuore pulsante della casa la zona giorno con soggiorno e cucina, un open space irradiato di luce che filtra dalle ampie vetrate affacciate ad ovest sul giardino. Al piano superiore, la zona più riservata dell’abitazione ospita tre camere da letto, due delle quali con balcone.
Una palette di materiali dai toni chiari, sia all’esterno sia all’interno, conferisce alla costruzione un carattere asciutto ma accattivante. All’esterno, il bianco delle superfici intonacate è interrotto da accese pennellate colore terracotta, nel rivestimento in gres porcellanato dell’imbotte delle finestre e nella della terrazza della camera da letto principale – un richiamo alle cromie prevalenti nell’intorno.
All’interno, un’atmosfera rarefatta avvolge gli spazi, connotati da toni neutri di pareti, pavimenti e arredi fissi, che dilatano la dimensione dello spazio oltre i confini della casa.
La via imboccata con la Casa SC è quella di una rilettura del vernacolo, che si sviluppa nel suggerirlo ma al contempo smaterializzarlo con scelte compositive e materiche che accentuano un carattere contemporaneo e minimale dell’abitare.
