A mezz’ora di automobile da Suzhou, la Venezia d’Oriente decantata da Marco Polo, si trova Shangmingdian, un villaggio rurale attraversato da una fitta rete di canali che fanno parte del sistema idrografico del delta del Fiume Yangtze. È qui che un imprenditore di Shanghai, affascinato dalla tranquillità e dal contatto con la vita rurale, ha deciso di costruire un edificio dall’uso ibrido, una “residenza a natura pubblica” nelle parole dei progettisti, a cavallo tra una casa-vacanza e un residence dove ospitare la famiglia e gli amici a trascorrere momenti di relax e convivialità.
Dalle rovine di una vecchia fabbrica, ha preso quindi forma la Floating House: una struttura ricettiva equipaggiata con spazi per la ristorazione e l’intrattenimento, disegnata da ChaoDesign, studio diretto da Wang Xing e Liang Fei. Il progetto prende le distanze da qualsiasi tentazione stilistica o di maniera e pone al centro di una profonda riflessione architettonica l’organizzazione delle funzioni. La convenzionale divisione tra spazi collettivi e spazi privati trova in questo edificio una declinazione quasi ironica, che individua nella terrazza posta sulla copertura del piano terra una linea di demarcazione tra un sotto e un sopra.
Al piano terra, un grande ambiente unitario cerca di amalgamare gli elementi interni ed esterni all’area di progetto con un unico gesto, uno spazio neutro, che raccoglie accettazione, caffetteria, area bambini, spazio espositivo, piscina e cortile, scandito dalla maglia strutturale e da pochi volumi di servizio per la cucina, i bagni, i depositi e i movimenti verticali. Le ampie superfici vetrate dissolvono il limite tra interno ed esterno, lasciando che gli occhi corrano lungo le mura perimetrali del lotto fino ad incontrare lo specchio d’acqua della piscina o del canale.
Il progetto rifiuta qualsiasi forma di integrazione tipologica, tecnologica o linguistica con il contesto, a partire dalla scelta di arretrare l’ingresso – posto sul lato nord – rispetto agli edifici limitrofi, così da inserire uno spazio filtro tra l’interno e la strada. Anche i muri perimetrali posti sui lati lunghi vanno in questa direzione, ovvero di isolare fisicamente e visivamente l’edificio dalle case adiacenti.
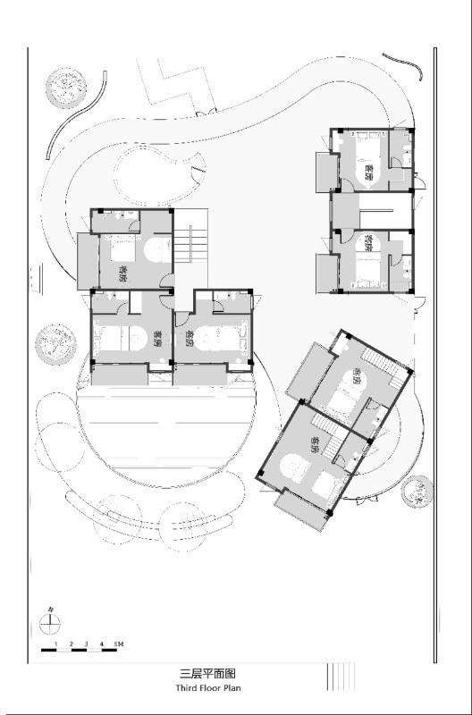
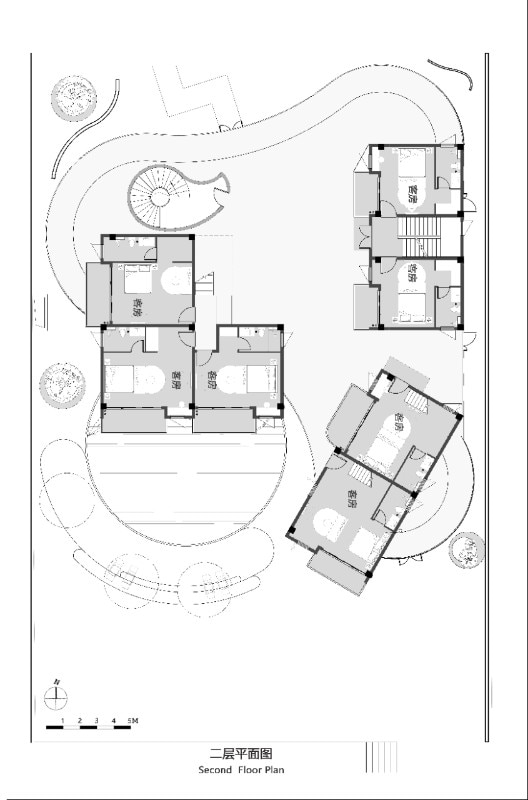
La copertura del piano terra costituisce il nuovo piano di riferimento su cui viene impostata una spazialità alternativa. Su questa terrazza panoramica sorgono infatti tre volumi distinti, sviluppati su due piani di altezza, che nulla hanno in comune con la grande hall sottostante. A predominare ora è l’opacità delle chiusure verticali, che conferisce massa ai bianchi volumi ed al pavimento su cui poggiano. La natura di questi corpi è polarizzata su due aspetti. Da una parte si legge un’idea di purezza, accentuata dal candore delle superfici che enfatizza gli effetti chiaroscurali generati dalla luce e rifiuta assonanze materiche con l’intorno. Dall’altra parte si percepisce una volontà di rompere l’effetto “scatola”, attraverso una serie di gesti architettonici. I balconi, ad esempio, sono parzialmente rientranti e parzialmente aggettanti rispetto al filo muro, mentre alcune finestre sono posizionate su setti obliqui che movimentano le facciate e lasciano che l’involucro reagisca all’articolazione tipologica.
Sono presenti dodici unità, di cui due doppie in duplex, tutte formate da stanza da letto, bagno e balcone. Alle finiture ad intonaco si affianca nei corpi scala di distribuzione l’uso della lamiera forata, sempre bianca. L’articolazione dei volumi sembra riproporre un’idea di densità e rarefazione che allude ad un microtessuto urbano, fatto di pieni e vuoti, che accolgono nuove interazioni tra gli ospiti della struttura e offrono un’inaspettata visione della realtà rurale circostante.
Nella Floating House è l’organizzazione delle funzioni ad innescare una riflessione architettonica. Il progetto sembra svilupparsi in modo spontaneo e giocoso portando alle estreme conseguenze il semplice, ma non banale, principio di smaterializzare il piano terra. La naturale conseguenza è stata quella di appesantire i piani soprastanti ribaltando i canonici rapporti di pesantezza e leggerezza e generando due mondi solo apparentemente indifferenti l’uno all’altro.
- Progetto:
- Floating House
- Architetto:
- Chaoyu Architectural design
- Capo progetto:
- Wang Xing & Liang Fei
- Team di progettazione:
- Wu Taokai, Yi Hangfei, Zhou Jie, Lin Qingxia, Chen Jinao, Bian Taochuan, Xiao Wenhui, Hua Yiying
- Design degli interni:
- Progettazione architettonica ChaoYu
- Progettazione della struttura:
- Tang Yinchuan
- Design delle decorazioni morbide:
- Chen Wei
- Cliente:
- Shanghai Shelter Food Co., LTD, Chen Wei
- Luogo:
- Villaggio Shangmingdian, Kunshan, città di Suzhou, provincia di Jiangsu
- Area:
- 1000 mq
- Completamento:
- Febbraio 2022
