Da risicato retrobottega a spazioso, lussuoso pied-à-terre: Oliver du Puy
densifica un micro-lotto di soli 4,2 metri di larghezza innestandovi il rifugio in terra australe di un uomo d’affari based in London.
Su richiesta specifica del committente, la Skinny House è certamente una casa di città (situata nel cuore di Melbourne), ma attraverso i suoi spazi e le sue atmosfere cerca di attenuare i disagi di una vita in corsa tra le metropoli globali.
Tra i riferimenti utilizzati per la concezione del progetto, che si propone esplicitamente di “esercitare un effetto di sollievo dallo stress”, du Puy cita comprensibilmente Tadao Ando, in particolare le sue prime architetture domestiche. Più sorprendente e ironico è il richiamo all’appartamento newyorkese di Patrick Bateman in American Psycho, che si vuole qui liberato della follia di cui è al tempo stesso materializzazione e palcoscenico nel film.
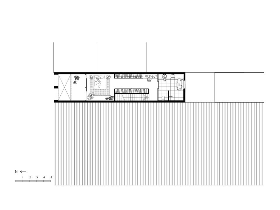
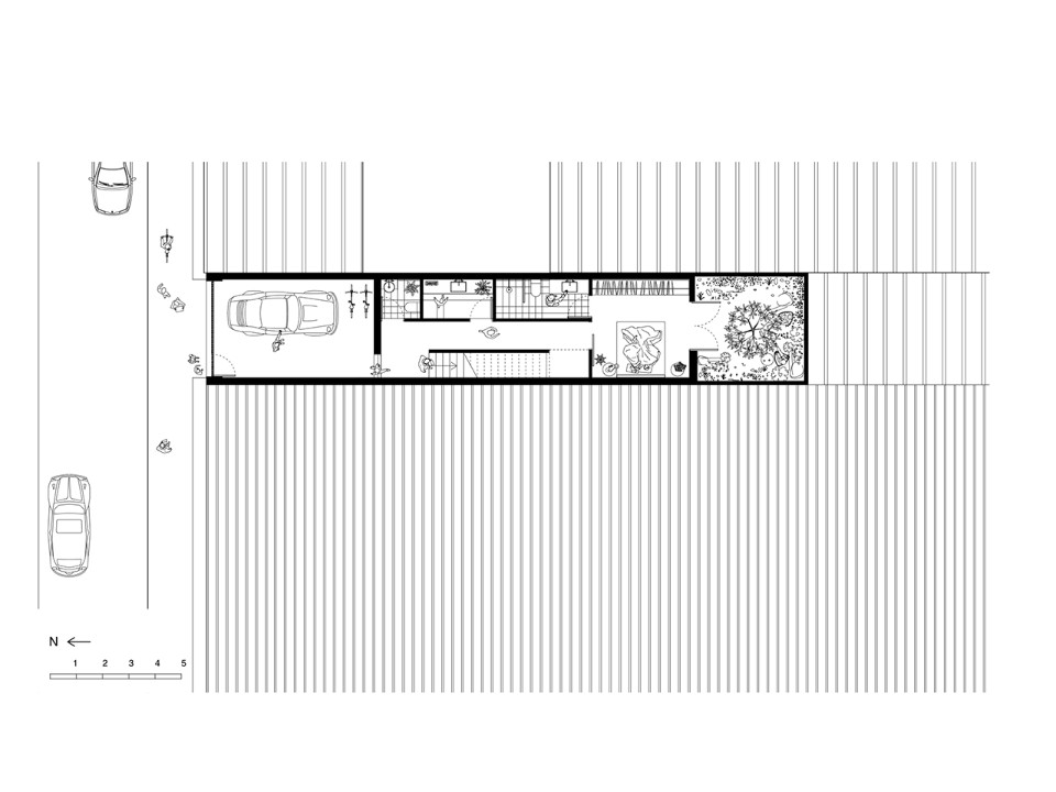
Nelle parole del suo progettista “gli spazi della Skinny House sono strutturati come un poema haiku, in una sequenza di momenti intimi la cui privacy aumenta risalendo all’interno dell’edificio”: al piano terra una camera per gli ospiti aperta su di un piccolo patio, al primo livello l’open space allungato della zona giorno e al secondo piano la camera padronale con la sua ampia sala da bagno.
Cemento a vista, legno di quercia, acciaio e marmo sono i pochi materiali che compongono gli ambienti di un edificio minimalista, mentre il robusto telaio di calcestruzzo anteposto all’affaccio su strada è un inaspettato accenno di monumentalità in un progetto dalla scala così ridotta.
- Progetto:
- Skinny House
- Programma:
- residenza privata
- Luogo:
- Melbourne, Australia
- Architetti:
- Oliver du Puy Architects
- Team di progetto:
- Oliver Arbes du Puy, Charlie Singh
- Prop stylist:
- Isabel Migliore
- Superficie costruita:
- 180 mq
- Completamento:
- 2019
