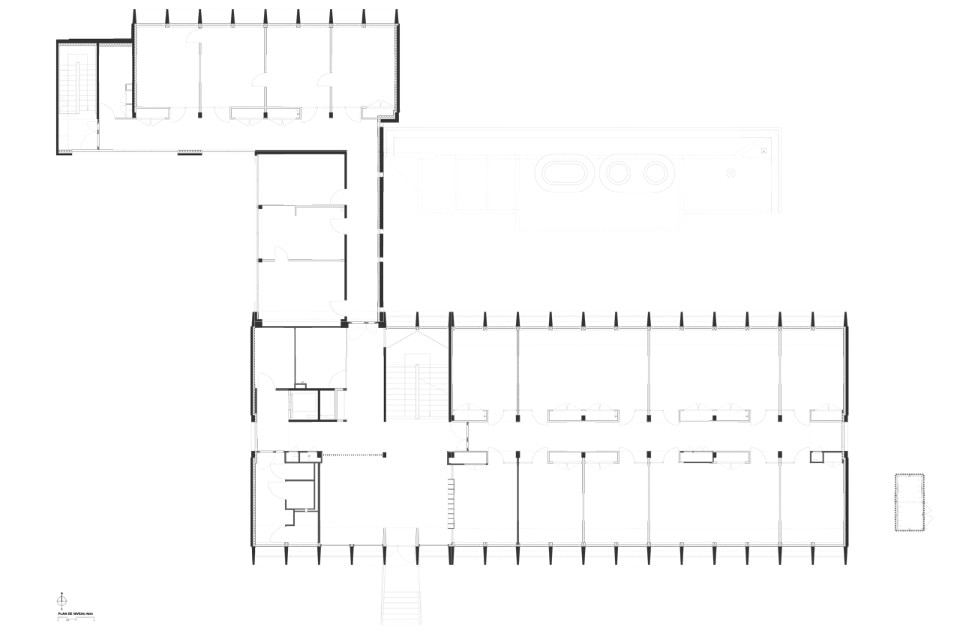
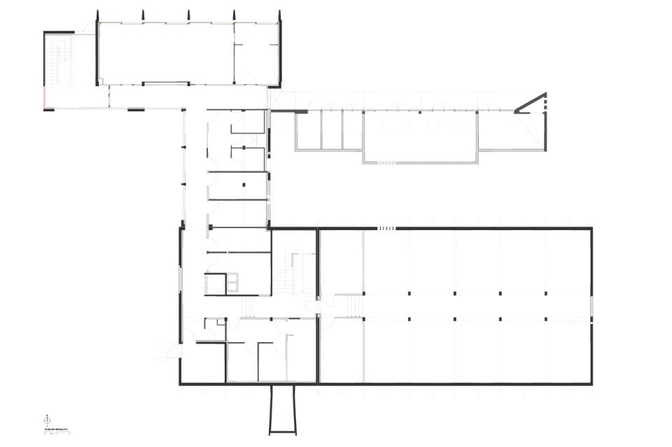
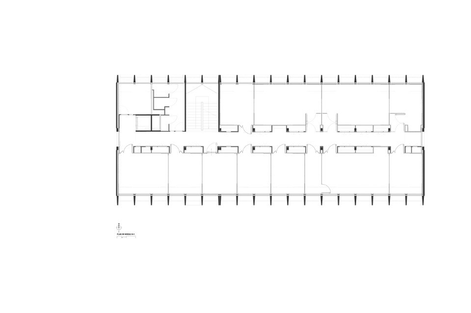
Galleria
I pannelli esterni traslucidi rafforzano il desiderio di integrazione con il sito. Le facciate presentano 110 pannelli diversi di resina composita, realizzati artigianalmente secondo tecniche specifiche, con motivi geometrici astratti o floreali. L’utilizzo del legno è molto presente nel progetto: si trova in serramenti, controsoffitti, pavimenti, arredi e pareti divisorie.
MI-mAbs, Marsiglia, Francia
Tipologia: uso misto
Architetto: Letoublon Dupouy – Laure Létoublon, Christophe Monge e Sébastien Dupouy
Ingegneria: Sarlec
Superficie: 2.090 mq
Completamento: 2017
