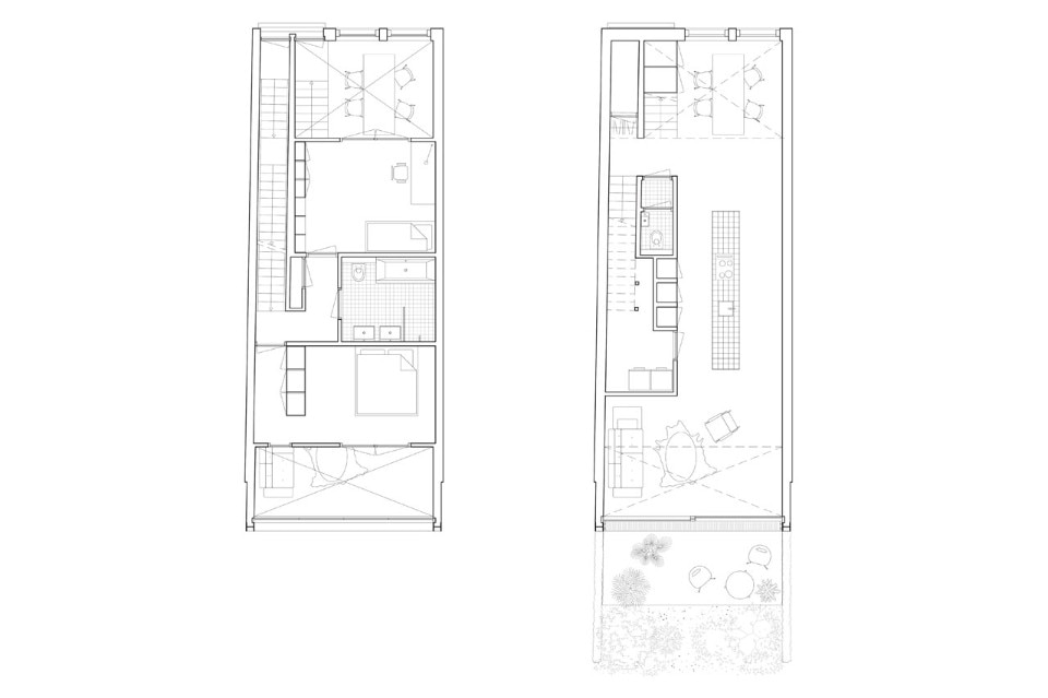
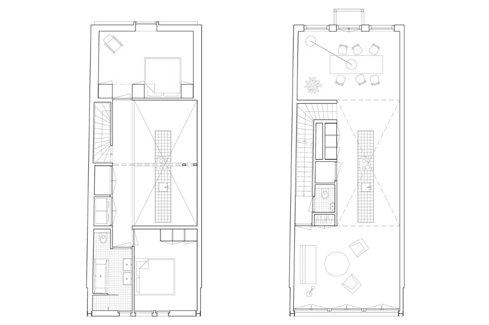
Preoccupato per lo stato di abbandono, un vicino è riuscito ad acquistare la proprietà chiedendo a Shift Architecture Urbanism di progettare una trasformazione radicale. Sono rimasti intatti l’involucro esterno e la struttura dei pavimenti, in parte rimossa per creare gli spazi a doppia altezza. Le zone private sono sospese in questi ambienti alti creando un effetto a matrioska. L’appartamento al piano terra ospita gli spazi a doppia altezza in corrispondenza delle facciate, concentrando le camere da letto e il bagno in un unico volume sospeso al centro. I due vuoti di risulta ospitano la zona giorno, in uno spazio seminterrato profondo 14 metri inondato di luce naturale.
Casa Matryoska, Rotterdam, Paesi Bassi
Tipologia: edificio per appartamenti
Architetti: Shift Architecture Urbanism
Team di progetto: Thijs van Bijsterveldt, Oana Rades, Harm Timmermans, Thomas Grievink, Sara Frikech
Partner: Makina
Ingegneria strutturale: B2CO
Imprese principali: 13 Speciaal, Ben Werkt
Completamento: 2017
