Galleria
C:\Temp\Project Path\VT_C07.02_B02.02_01 Arkitekt_CHN.pdf
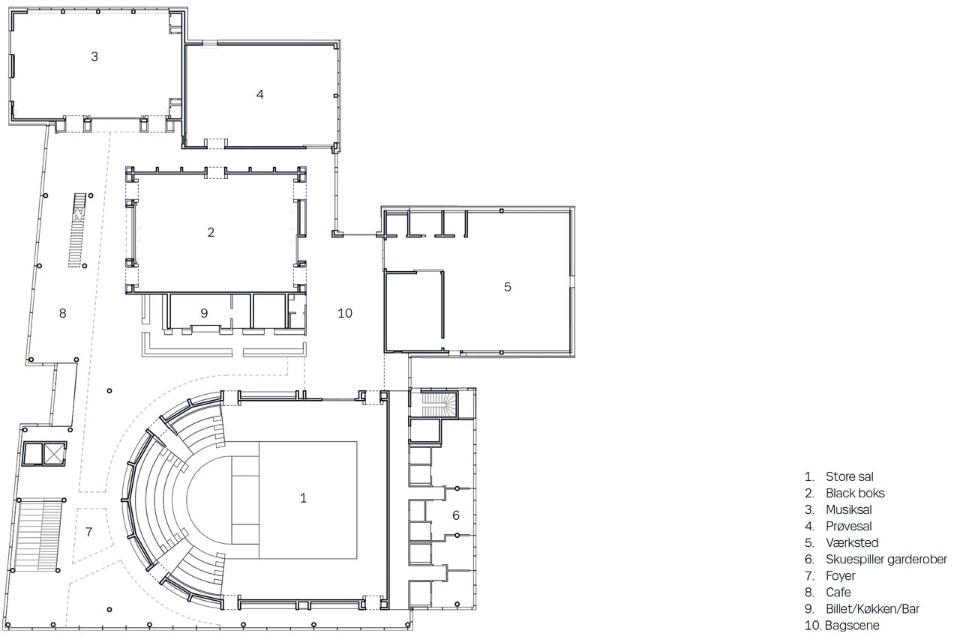
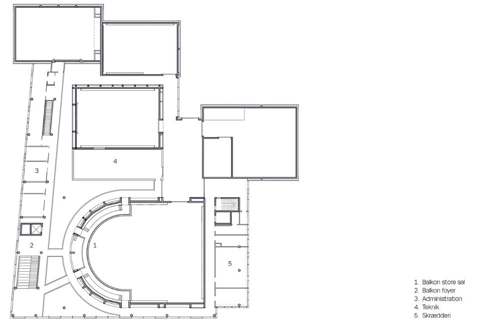
Schmidt Hammer Lassen Architects, Teatro Vendsyssel, piano terra
L’architettura, il programma e l’esperienza spaziale si basano su cinque temi fondamentali: l’ancoraggio alla città, la trasparenza, la funzionalità, la flessibilità e la materialità. Il risultato è un edificio pragmatico, che invita sia all’uso attivo sia alla contemplazione e alla pausa.
Teatro Vendsyssel, Hjørring, Denmark
Tipologia: teatro
Architetto: Schmidt Hammer Lassen Architects
Architetto locale: Arkitektfirmaet Finn Østergaard A/S
Ingegneria: Brix & Kamp, ALECTIA
Paesaggio: LIW Planning Aps
Altri consulenti: Gade & Mortensen Akustik, AIX Arkitekter, Filippa Berglund
Superficie: 4.200 mq
Completamento: 2017
