View gallery
C:\Temp\Project Path\VT_C07.02_B02.02_01 Arkitekt_CHN.pdf
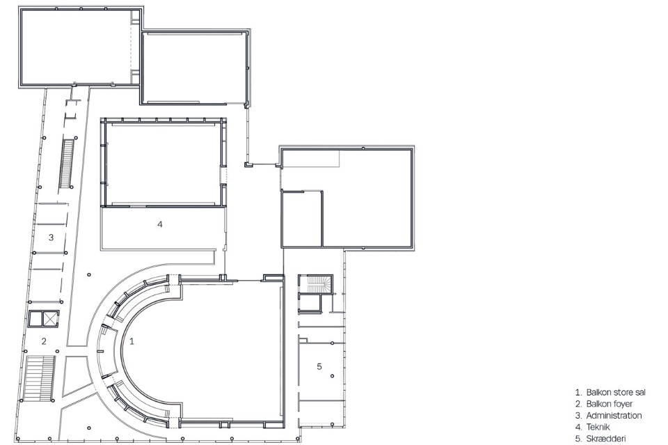
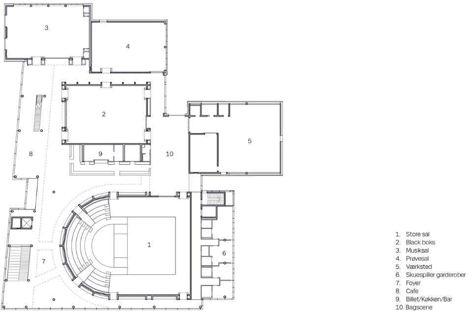
Schmidt Hammer Lassen Architects, Vendsyssel theatre, ground floor
Architectural, functional and experiential emphasis has been placed on five main themes: anchoring in the town, transparency, functionality, flexibility and materiality. The result is a striking building, which relates pragmatically to its function and which invites both active use and quiet breaks.
Vendsyssel theatre, Hjørring, Denmark
Program: theatre
Architect: Schmidt Hammer Lassen Architects
Local architect: Arkitektfirmaet Finn Østergaard A/S
Engineering: Brix & Kamp, ALECTIA
Landscape: LIW Planning Aps
Other consultants: Gade & Mortensen Akustik, AIX Arkitekter, Filippa Berglund
Area: 4,200 sqm
Completion: 2017
