Galleria
Gwendolyn Huisman & Marijn Boterman, skinnySCAR, Rotterdam, 2016. A sinistra: foto Ossip van Duivenbode. A destra: foto Vincent van Dordrecht
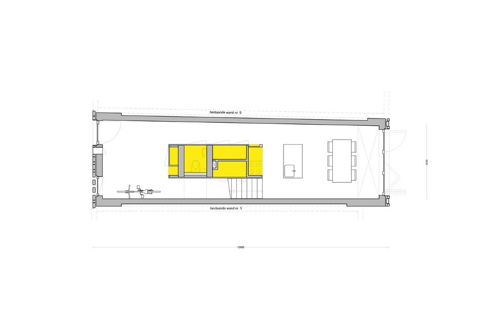
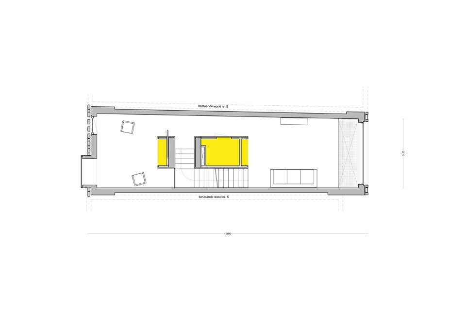
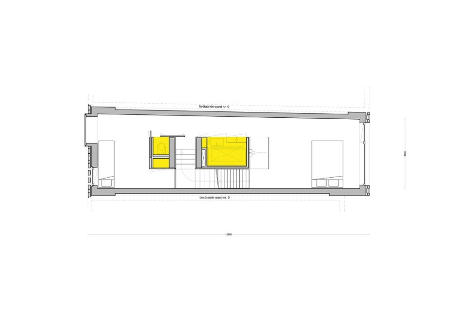
Le proporzioni estreme del lotto, di soli 3,4 metri di larghezza e 20 metri di profondità costituisce la principale sfida per le progettiste e per la costruzione del sito. La struttura portante è formata da due setti paralleli di cemento armato. Gli architetti hanno concentrato tutte le funzioni di servizio dell’abitazione e gli impianti in due volumi posizionati al centro della residenza.
skinnySCAR, Rotterdam, Paesi Bassi
Tipologia: residenza unifamiliare
Architects: Gwendolyn Huisman & Marijn Boterman
Superficie: 140 mq
Completamento: 2016
