View gallery
Gwendolyn Huisman & Marijn Boterman, skinnySCAR, Rotterdam, 2016. Left: photo Ossip van Duivenbode. Right: photo Vincent van Dordrecht
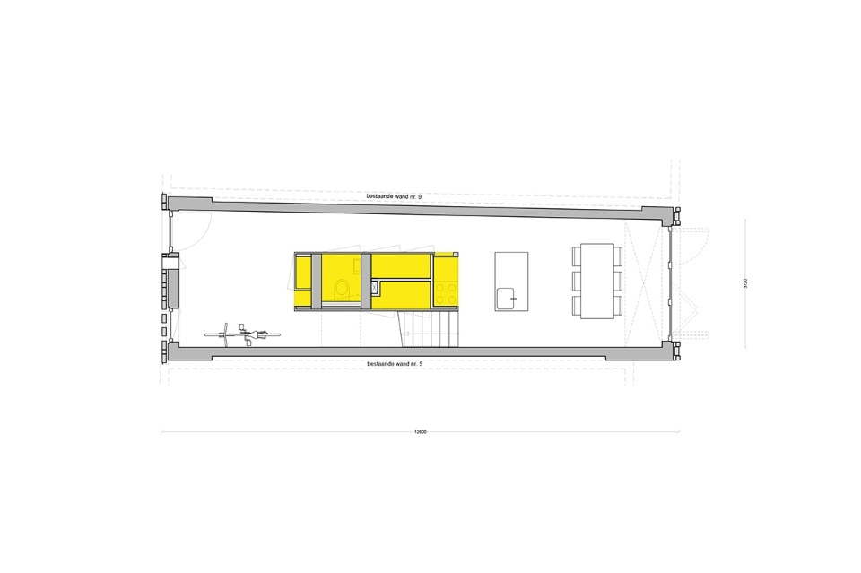
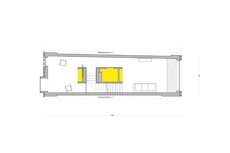
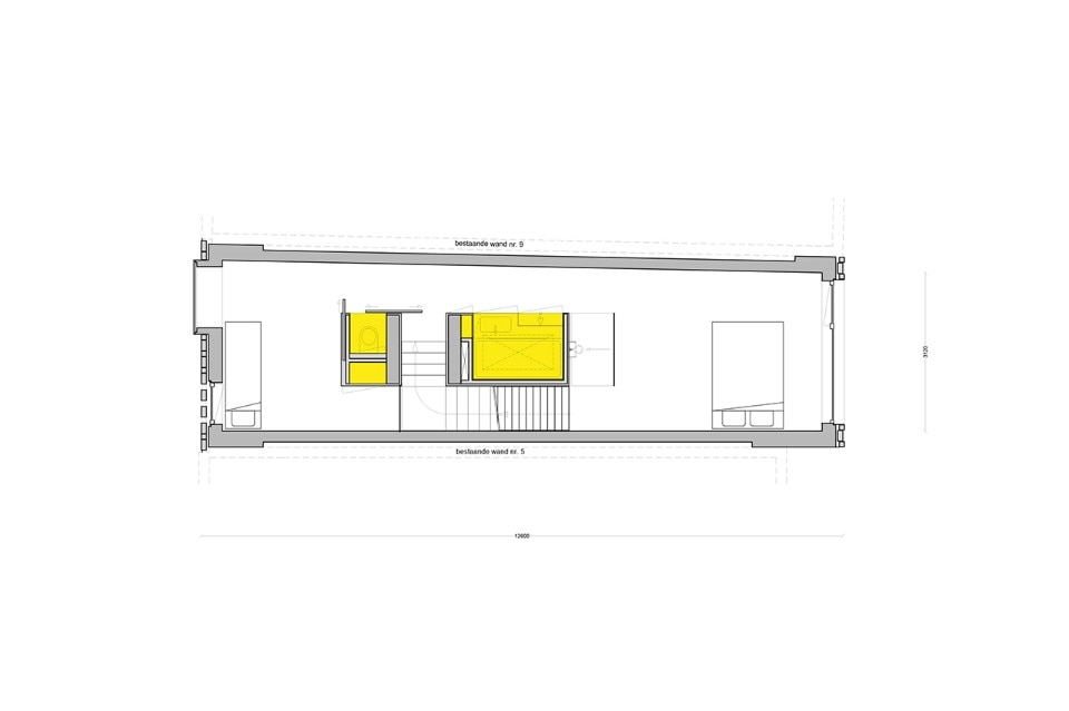
The extreme proportions of the plot, only 3.4 meters wide and 20 meters deep, result in a stacked open loft typology while it was a constructional challenge. Being this narrow and long in relation to the height, a massive foundation and load bearing structure were needed. Hence an elegant solution of two parallel reinforced concrete slabs was introduced in the interior of the house.
skinnySCAR, Rotterdam, The Netherlands
Program: single family house
Architects: Gwendolyn Huisman & Marijn Boterman
Area: 140 sqm
Completion: 2016
