Un incontro con i fondatori della onlus ha fatto scaturire l’idea di progettare un edificio antisismico per i bambini, che potesse servire come un rifugio, per aiutarli a sentirsi i benvenuti e di nuovo parte di una famiglia.
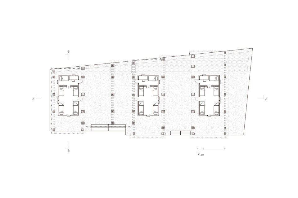
La onlus voleva uno spazio facile da controllare, in cui i bambini potessero dormire e svolgere le loro attività quotidiane. I bambini, invece, avrebbero avuto bisogno di zone differenti; uno spazio coperto da condividere con i loro compagni di casa; una veranda per fare i compiti e trascorrere il tempo con i loro amici più stretti; un grande spazio aperto da condividere con tutti gli altri. Questa suddivisione è importante se si considera il fatto che ci sono bambini di età e diversa storia.
Il problema principale che i progettisti hanno affrontato durante la costruzione è stata l’organizzazione della logistica: molti dei materiali necessari sono stati acquistati nella Repubblica Dominicana, soprattutto nella capitale di Santo Domingo, che si trova a un giorno di viaggio dal cantiere. Inoltre, a causa di problemi diplomatici tra i due paesi, è stato difficile far passare la merce attraverso la dogana e trasportarla al sito. Tutti gli altri materiali e componenti sono stati personalizzati in loco da artigiani locali.
La decisione di impiegare esclusivamente lavoratori e artigiani locali, ha portato alla partecipazione diretta di tutta la comunità e alla creazione di una struttura che appartiene al territorio e al suo contesto architettonico e culturale.
Ti kay là, Anse-à-Pitres, Sur Este, Haiti
Tipologia: complesso residenziale per 30 bambini
Architetto: Bonaventura Visconti di Modrone
Cliente: Ayitimoun yo NGO
Area: 400 mq
Anno: 2015
