
L’alleato in una cucina intelligente
I forni AEG con AI TasteAssist rivoluzionano la cucina che conosciamo. Ogni ricetta è alla portata di tutti grazie all’integrazione dell’intelligenza artificiale, che seleziona tempi, modalità di cottura e temperature più adatte alla ricetta desiderata.

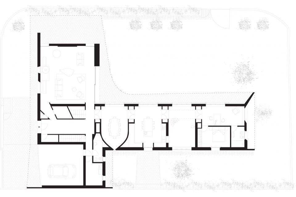
Negli spazi interni si alternano compressioni formate dalle soglie tra un locale e un altro, dilatazioni e doppie altezze.
Tutti i locali sono caratterizzati da una doppia esposizione mentre gli spazi serventi sono completamente aboliti per lasciare il posto a grandi locali scanditi solo da spazi interstiziali. La continuità si ritrova anche nei due piani della casa che sono “riuniti” dal grande soggiorno a doppia altezza su cui si affacciano entrambi. Anche l’ampio giardino sembra uno spazio interno: esso risulta, infatti, un grande spazio raggiungibile da tutti i locali, peculiarità che ancora una volta conferma l’elemento di continuità degli ambienti.
La duplice esposizione delle stanze, valorizzata dalle relative aperture con affaccio sul giardino, regala agli ambienti interni un’abbondante luce naturale che anima i locali: si tratta per la quasi totalità di ampie porte finestre che illuminano pienamente gli interni. La luce scaturisce anche dai grandi camini esterni che in alcuni casi ospitano canne fumarie mentre in altri, per l’appunto, diventano veri e propri camini di luce.



\\Serverdell\lavori\DEA_PREMI E PUBBLICAZIONI\2014\1410 ARCHDAILY\Suburbian villa\DEA_drawings\Suburbian villa Model (1)

\\Serverdell\lavori\DEA_PREMI E PUBBLICAZIONI\2014\1410 ARCHDAILY\Suburbian villa\DEA_drawings\Suburbian villa Model (1)
Villa di Pianura, Pavia
Programma: casa unifamiliare
Architetti: deamicisarchitetti
Area: 460 mq
Completamento: 2014

Il Terrazzo. Dalle radici al futuro firmato Ceramica Sant’Agostino
Il terrazzo, simbolo architettonico, rinasce con Ceramica Sant’Agostino. Le collezioni IRO e Glow trasformano il classico in una tendenza innovativa, unendo storia, tecnologia e design per spazi eterni e contemporanei.