The house reaches for the margins of the allotment and pushes out into the road: in doing so, it creates urban contexts that different in nature and identity. On the north side, it has a clean urban front with a serpentine schist atrium, and on the south side a wide garden area.
The architectural language is dominated by the roof form, and it is structured in a way that complies with these conditions. The sequence of rooms typical of vintage houses (which lack of any other arrangement) and the large pitched roofs of old farmsteads are the two main typology landmarks. The materials mainly used for the interior decor are terrazzo and heat treated oak.
View gallery
\\Serverdell\lavori\DEA_PREMI E PUBBLICAZIONI\2014\1410 ARCHDAILY\Suburbian villa\DEA_drawings\Suburbian villa Model (1)
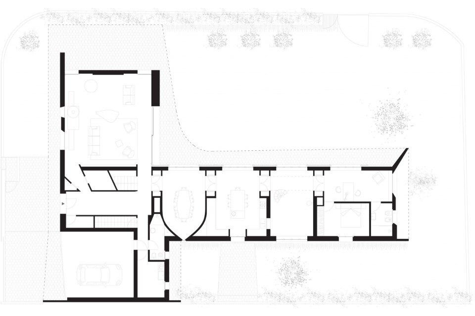
deamicisarchitetti, Villa di Pianura, Pavia, Italy. Ground floor plan
\\Serverdell\lavori\DEA_PREMI E PUBBLICAZIONI\2014\1410 ARCHDAILY\Suburbian villa\DEA_drawings\Suburbian villa Model (1)
deamicisarchitetti, Villa di Pianura, Pavia, Italy. First floor plan
Villa di Pianura, Pavia, Italy
Program: single-family house
Architects: deamicisarchitetti
Area: 460 sqm
Completion: 2015
