L’edificio originale non ha valore storico o architettonico, ma è importante come infrastruttura esistente, oltre ad avere un significato sentimentale: è il carisma della parte più antica e l’atmosfera creata sui materiali (pareti in muratura, soffitti nascosti di volte in ceramica e travi in cemento,...) dalla patina del tempo che passa.
Lo scopo principale dell’intervento, sia negli interni sia sulla facciata su strada originale, è potenziare il rapporto e la tensione tra il vecchio e il nuovo.
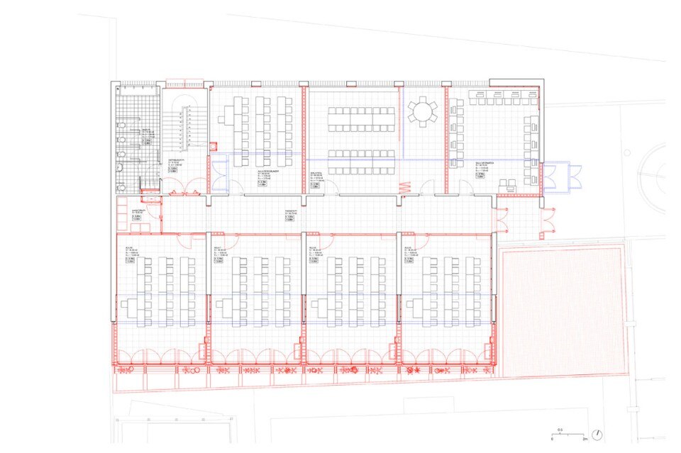
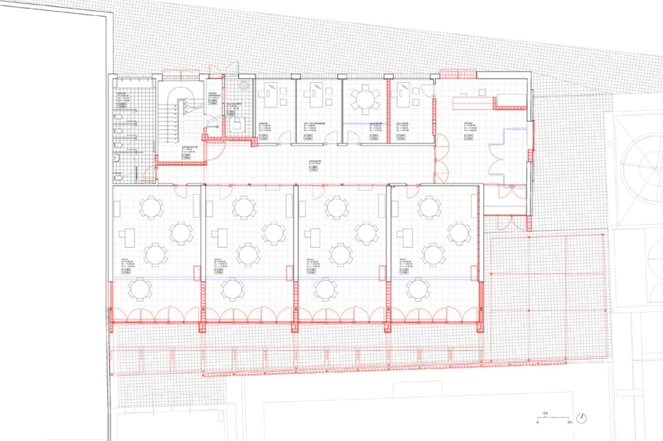
L’intervento più costoso del progetto è l’ampliamento dell’edificio, giustificato dalla mancanza di superficie delle aule esistenti sul lato della strada. Al piano terra, il prolungamento preserva il corridoio esistente, mentre le aule per i bambini più piccoli si affacciano verso il cortile, che è stato aumentato da 35 a 50 mq. Dall’altro lato, al primo e al secondo piano, il corridoio è spostato sul lato opposto della parete centrale in modo che tutte le classi che si affacciano sulla strada possono essere estese.
Questo cambiamento dà luogo a uno degli aspetti più potenti del progetto: l’apertura del nuovo corridoio che attraversa un vecchio muro che in origine separava le aule.
Galleria
Riqualificazione della Scuola 906 a Sabadell, Barcellona, Spagna
Tipologia: scuola
Architetti: Harquitectes (David Lorente, Josep Ricart, Xavier Ros, Roger Tudó)
Collaboratori: Blai Cabrero, Carla Piñol, Toni Jiménez
Team: BISarquitectes (Structural Design, project phase), DSM arquitectura (Structural Design, construction phase), ÀBAC enginyers (Engineering)
Costruttore: Agrupació pedagògica Sant Nicolau
Area: 1.677 mq
Completamento: 2015
