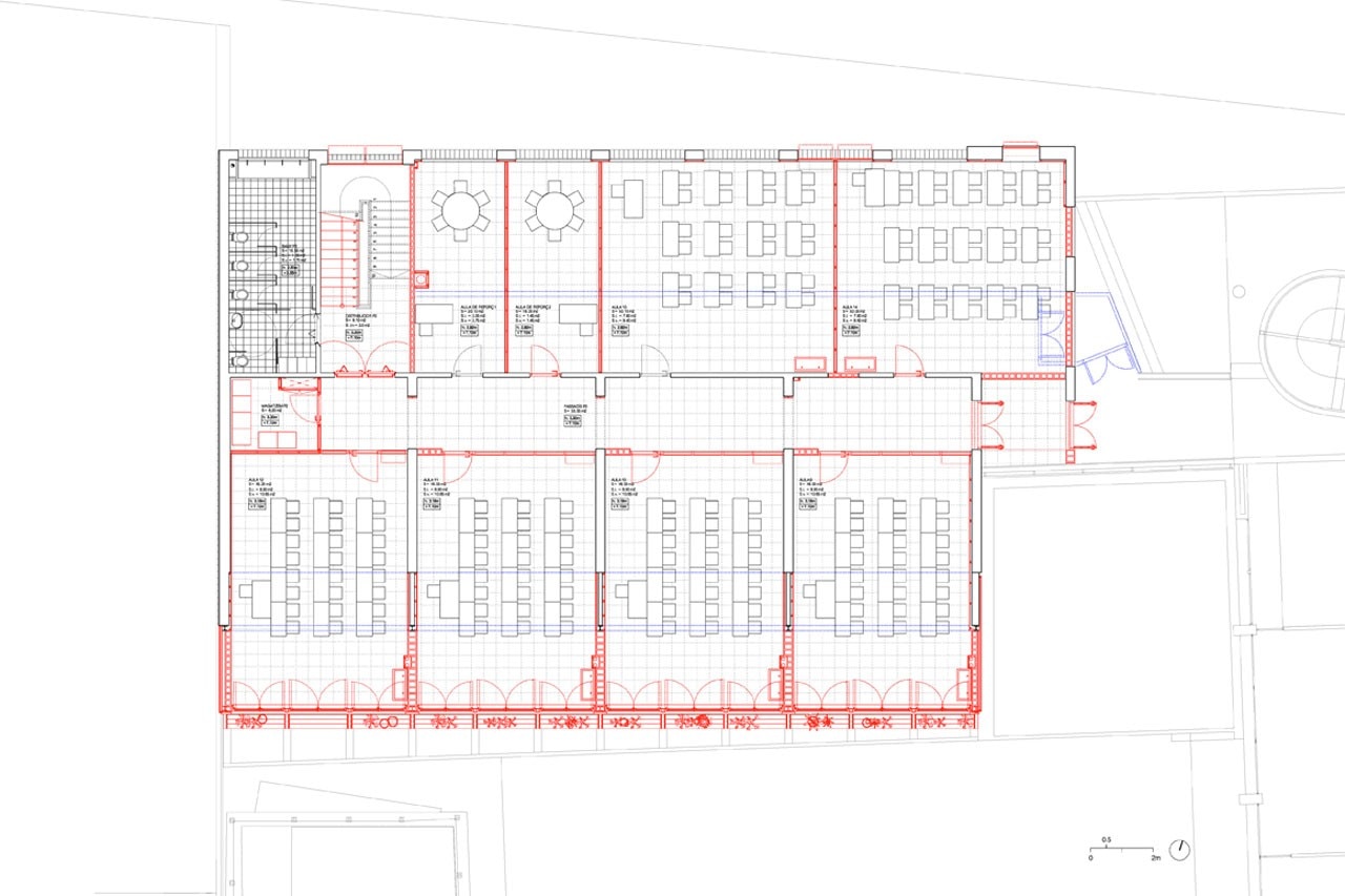
The proposal involves only the oldest building (1959) which hosts the pre-school classrooms and few outdoor spaces. The essential strategy consists on taking advantage of the huge potential of the original building, both the constructed surfaces as well as the useful spaces.
The main interventions are a complete indoor refurbishment and a small extension of 240 sqm added to the previous 1,200 sqm giving a new south facade. The design also includes two new playgrounds: one on top of the building and another one on the roof of the sports center entrance. Finally, a new porch is added to the street main access.
The original building has no heritage value, but it does have certain material value as existing infrastructure. It also has a two sided sentimental meaning. It’s “charisma” linked to the oldest part of the school building, and the “atmosphere” due to the passing time patina has given to the material (masonry walls with sunken joints, hidden ceilings of ceramic vaults and concrete beams, etc.)
The principal aim of the intervention, both in the interior and the original street facade, is potentiating the relationship and tension between the old and the new parts.
View gallery
Refurbishment of School 906 in Sabadell, Barcelona, Spain
Program: school
Architects: Harquitectes (David Lorente, Josep Ricart, Xavier Ros, Roger Tudó)
Collaborators: Blai Cabrero, Carla Piñol, Toni Jiménez
Team: BISarquitectes (Structural Design, project phase), DSM arquitectura (Structural Design, construction phase), ÀBAC enginyers (Engineering)
Developer: Agrupació pedagògica Sant Nicolau
Area: 1,677 sqm
Completion: 2015
