Quest’area deve originariamente il suo nome ai fondatori del sistema postale belga, la famiglia Von Thurn und Taxis. Alla fine del diciannovesimo secolo era un importante centro dotato di strutture per il trasporto delle merci via acqua e via ferrovia.
Oggi Tour & Taxis si avvia a diventare un modello di rigenerazione urbana sostenibile che attirerà nuovamente la popolazione sulle rive del canale.
Galleria
details A3 eng
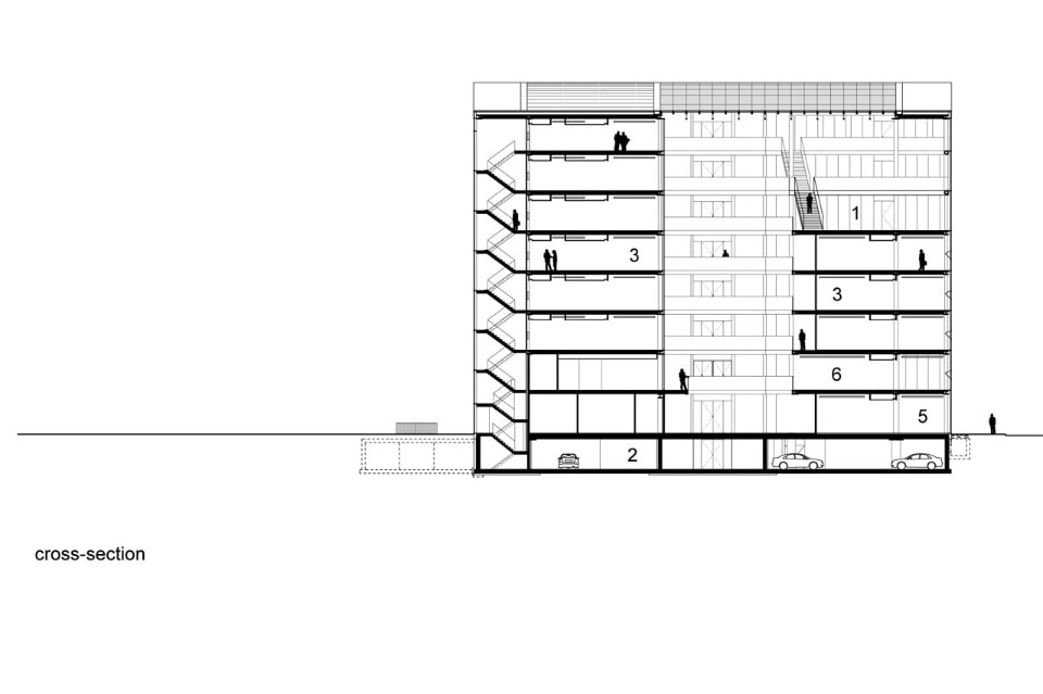
Architectenbureau Cepezed, Brussels Environment Agency, Belgio. Prospetto
details A3 eng
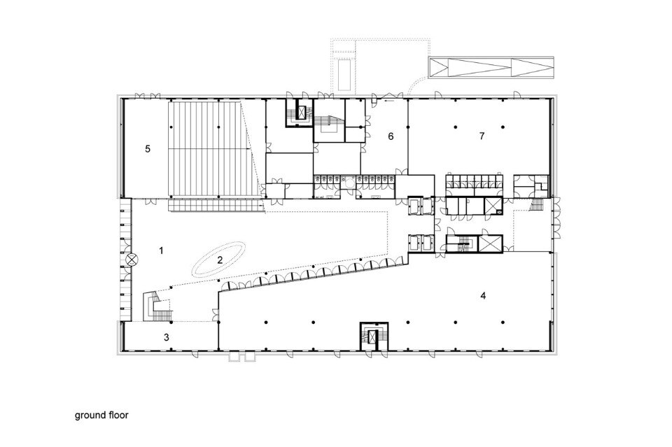
Architectenbureau Cepezed, Brussels Environment Agency, Belgio. Pianta del piano terra
Brussels Environment Agency, Belgio
Programma: edificio per uffici
Architetti: Architectenbureau Cepezed
Architetti locali: Philippe Samyn and Partners
Ufficio tecnico di controllo: SECO
Fisica e progettazione sostenibile dell’edificio: DGMR
Ingegneria civile: Ingenieursbureau SmitWesterman - Ingenieursbureau Meijer bvba
Impianto elettrico e di riscaldamento e condizionamento: Flow Tech International
Impresa appaltatrice: Van Laere. NV
Importatore del legno di latifoglia: Martal (AHEC)
Partizioni in legno: Jansen Finishings
Costo: € 50 millioni
Area: 19.690 mq
Completamento: 2014
