La rampa esistente, che conduceva al ponte di legno sopra la zona del bestiame, è stato mantenuto e funge da ingresso principale al nuovo appartamento. L’ex area per lo stoccaggio esterno accanto all’ingresso è stata trasformata in veranda con vista sulle Alpi. Tutti i rivestimenti in legno esterni e il tetto in cemento sono stati mantenuti, intervenendo solo in corrispondenza delle finestre e aprendo il portico anteriore.
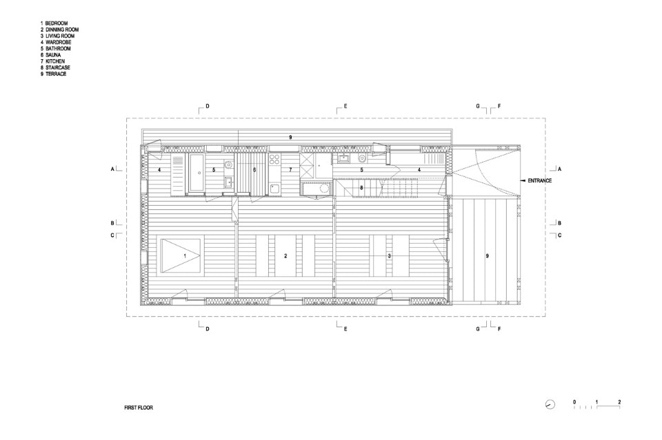
Lungo il volume principale, incastrandoli nella struttura in legno esistente, sono collocati la zona giorno, la sala da pranzo e la camera da letto soppalcata. Gli spazi ausiliari come le cabine armadio, i bagni, la sauna, il camino e la cucina sono collocati all’interno di un corpo di servizio spostato lateralmente dietro il muro creato dalle assi verticali in legno. La camera per gli ospiti è posta sopra la terrazza, aperta come una galleria verso lo spazio abitativo principale. Tutti i rivestimenti interni (pavimenti, pareti, mobili) sono in abete rosso locale spazzolato.
Galleria
Alpine Barn Apartment, Bohinj, Slovenia
Tipologia: csa unifamiliare
Architetti: OFIS Architects
Team di progetto: Rok Oman, Spela Videcnik, Andrej Gregoric, Janez Martincic, Michele Albonetti, Maria Della Mea, Tomaž Cirkvencic, Pawel Nikkiel, Gözde Okyay, Maria Rosaria Ritonnaro, Ralea Toma Ioan Catalin, Grega Valencic, Vlad Popa, Tanja Veselic, Jade Manbodh
Ingegneria strutturale: Projecta
Ingegneria meccanica: MM-term
Ingegneria elettrica: ES
Progetto illuminotecnico: Arcadia lightwear
Impresa: Permiz
Area: 120 mq
Completamento: 2015
