The existing ramp, which leads to the wooden deck above cattle area is kept and serves as the main entrance to the new gallery apartment. The former external storage area next to the entrance is converted into the porch overlooking the Alps. All external wooden cladding and concrete roof slates are maintained, the only intervention are perforations into wooden parts behind internal windows and opening of the front porch.
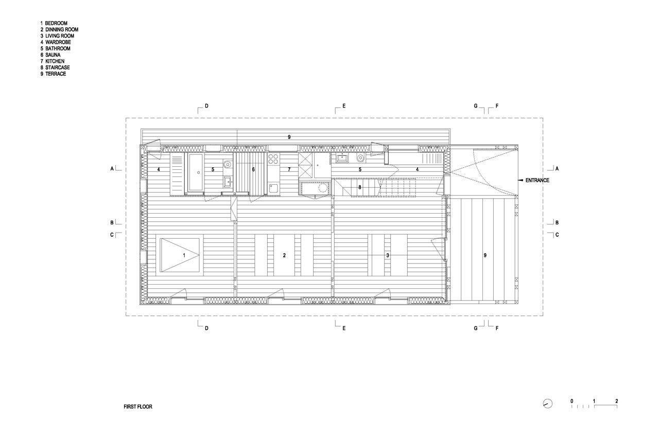
Along the main volume between each existing wooden structure line are positioned living area, dining and raised bedroom. The auxiliary spaces like wardrobe, bathrooms, sauna, fireplace and kitchen are packed inside the service box displaced on the side behind the wall created by vertical planks. Guest bedroom is created above the terrace, opened as a gallery towards the main living space. All the internal shell (floors, walls, furniture) is made by deep-brushed local spruce.
View gallery
Alpine Barn Apartment, Bohinj, Slovenia
Program: single-family house
Architects: OFIS Architects
Project Team: Rok Oman, Spela Videcnik, Andrej Gregoric, Janez Martincic, Michele Albonetti, Maria Della Mea, Tomaž Cirkvencic, Pawel Nikkiel, Gözde Okyay, Maria Rosaria Ritonnaro, Ralea Toma Ioan Catalin, Grega Valencic, Vlad Popa, Tanja Veselic, Jade Manbodh
Structural engineering: Projecta
Mechanical engineering: MM-term
Electrical engineering: ES
Lighting: Arcadia lightwear
General contractor: Permiz
Area: 120 sqm
Completion: 2015
