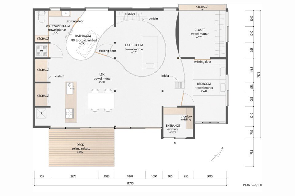
Costruire le pareti con un multistrato curvato di spessore pari a 20 millimetri ha permesso di lavorare con un budget limitato. Tuttavia, una volta iniziata la costruzione, la poca precisione di questi pannelli non ha aiutato a realizzare lo spazio desiderato, costringendo gli architetti a integrare le pareti con una struttura di sostegno composta da aste di 25 mm quadrati.
Porte e finestre della casa esistente sono state riutilizzate. Lo spazio interno del bagno è stato rivestito con fibra di policarbonato rinforzato, sul quale è stato posizionato un controsoffitto in policarbonato stratificato.
Il muro esterno è stato rivestito con tavole di cedro bruciato, e alcune finestre sono state sostituite da strutture in legno.
Galleria
Casa a Kamisawa, Hyogo, Giappone
Tipologia: casa unifamiliare
Architetti: Tato Architects
Team di progetto: Yo Shimada, Keita Kurokoshi
Impresa: Kyowa Techno
Area: 86,57 mq
Completamento: 2015
