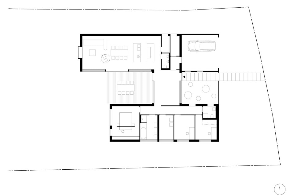
La composizione crea due cortili: uno è lo spazio da attraversare per raggiungere la casa dalla strada, mentre l’altro è una terrazza orientata verso l’ampio paesaggio.
Le finestre sul lato strada sono protette dalle lamelle della facciata in legno di larice non trattato, che ingrigirà col tempo, mentre le finestre verso il paesaggio godono di una vista libera. Così da lontano, la casa appare come un accostamento di due volumi identici, completamente privi di finestre.
L’impianto elettrico è costituito da tubi di rame installati sulle pareti in legno massiccio, che non sono state forate. Tutti gli impianti sono stati progettati da Kühnlein Architektur, comprese le lampade, gli interruttori e le prese.
Un soggiorno open space occupa quasi tutta l’ala nord e comprende una stufa a legna che può essere ruotata e un tavolo da pranzo realizzato con gli scarti del cantiere. Un piccolo ripostiglio per abiti da lavoro collega il garage, che si trova nella parte anteriore di questo blocco.
Le tre camere da letto occupano invece il volume sud, insieme ai bagni. La camera padronale è all’estremità del blocco, con vista sul paesaggio.
Timber House, Neumarkt in der Oberpfalz, Germania
Tipologia: casa unifamiliare
Architetti: Kühnlein Architektur
Completamento: 2014
