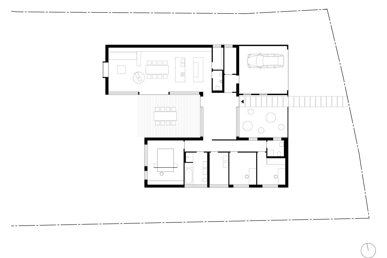
The combination creates two yards: one becomes the space you pass by as you enter the house from the street, while the other is a terrace oriented towards the wide landscape.
The windows to the street side are screened with the lamellae of the timber facade, while the windows to the landscape side have a free view, the facade is untreated larch wood, so it will grey with time. So from afar, the house appears like identical side-by side homes, completely devoid of windows.
The electrical installation consists of copper pipes installed in front of the massive timber walls, so it was not necessary to perforate the walls. All the installations were designed by Kühnlein Architektur, including the lamps, switches and sockets.
An open-plan living space occupies the northern most wing. It includes a wood-burning stove that rotates, as well as dining table created using offcuts from the build. A little cloak-cabin for work clothes connects the garage, which sits at the front of this block.
Three bedrooms are contained within the south-facing volume, as well as bathrooms. The master suite is positioned at the far end, offering views out over the landscape.
Timber House, Neumarkt in der Oberpfalz, Germany
Program: single-family house
Architects: Kühnlein Architektur
Completion: 2014
