Elementi come il tetto a falde e finestre a saliscendi creano un legame con la tipologia residenziale tradizionale, ma vengono reinterpretati in maniera astratta: il tetto diventa una pelle che avvolge l’esterno e prosegue nella zona d’ingresso, come un’onda di rottura.
I colori e i materiali scelti per l’esterno richiamano un’estetica industriale, un riferimento alle aree industriali nelle vicinanze, mentre il legno mantiene la sensazione residenziale di calore. La scelta di proseguire le scelte esterne negli ambienti interni mantiene la coerenza del progetto nel suo insieme.
Galleria
C:\Users\SUPERMAN\Dropbox (baranstudio)\Clients\Cal Inman\58th St, 853\Drawings\Revit\58th 140305 Submit (R2).pdf
Baran Studio, Casa a North Oakland, California. Prospetti
C:\Users\SUPERMAN\Dropbox (baranstudio)\Clients\Cal Inman\58th St, 853\Drawings\Revit\58th 140305 Submit (R2).pdf
Baran Studio, Casa a North Oakland, California. Inquadramento
C:\Users\SUPERMAN\Dropbox (baranstudio)\Clients\Cal Inman\58th St, 853\Drawings\Revit\58th 140305 Submit (R2).pdf
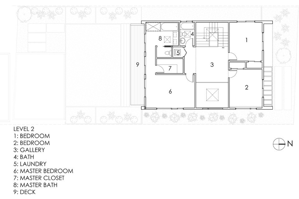
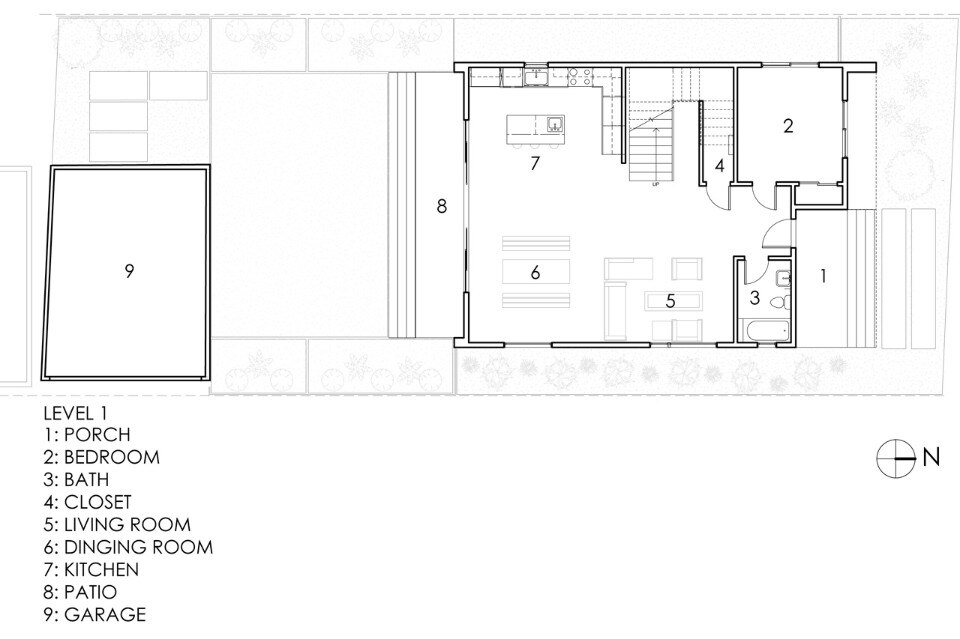
Baran Studio, Casa a North Oakland, California. Pianta del piano terra
Casa a North Oakland, California
Tipologia: casa unifamiliare
Architetti: Baran Studio Architecture
Completamento: 2015
