Elements like the pitched roof and hung windows make the connection to a traditional home, but such elements are abstracted – the roof becomes a skin that is wrapped around the exterior, and the wrap curls up into the entry area, like a breaking wave.
The color and material expression on the exterior recall an industrial aesthetic, which further links it to the industrial areas of the nearby context, while the wood maintains the warm residential feel. Elements are carried through from outside to inside to maintain connections throughout the project as a singular experience.
View gallery
C:\Users\SUPERMAN\Dropbox (baranstudio)\Clients\Cal Inman\58th St, 853\Drawings\Revit\58th 140305 Submit (R2).pdf
Baran Studio, House in North Oakland, California. Elevations
C:\Users\SUPERMAN\Dropbox (baranstudio)\Clients\Cal Inman\58th St, 853\Drawings\Revit\58th 140305 Submit (R2).pdf
Baran Studio, House in North Oakland, California. Siteplan
C:\Users\SUPERMAN\Dropbox (baranstudio)\Clients\Cal Inman\58th St, 853\Drawings\Revit\58th 140305 Submit (R2).pdf
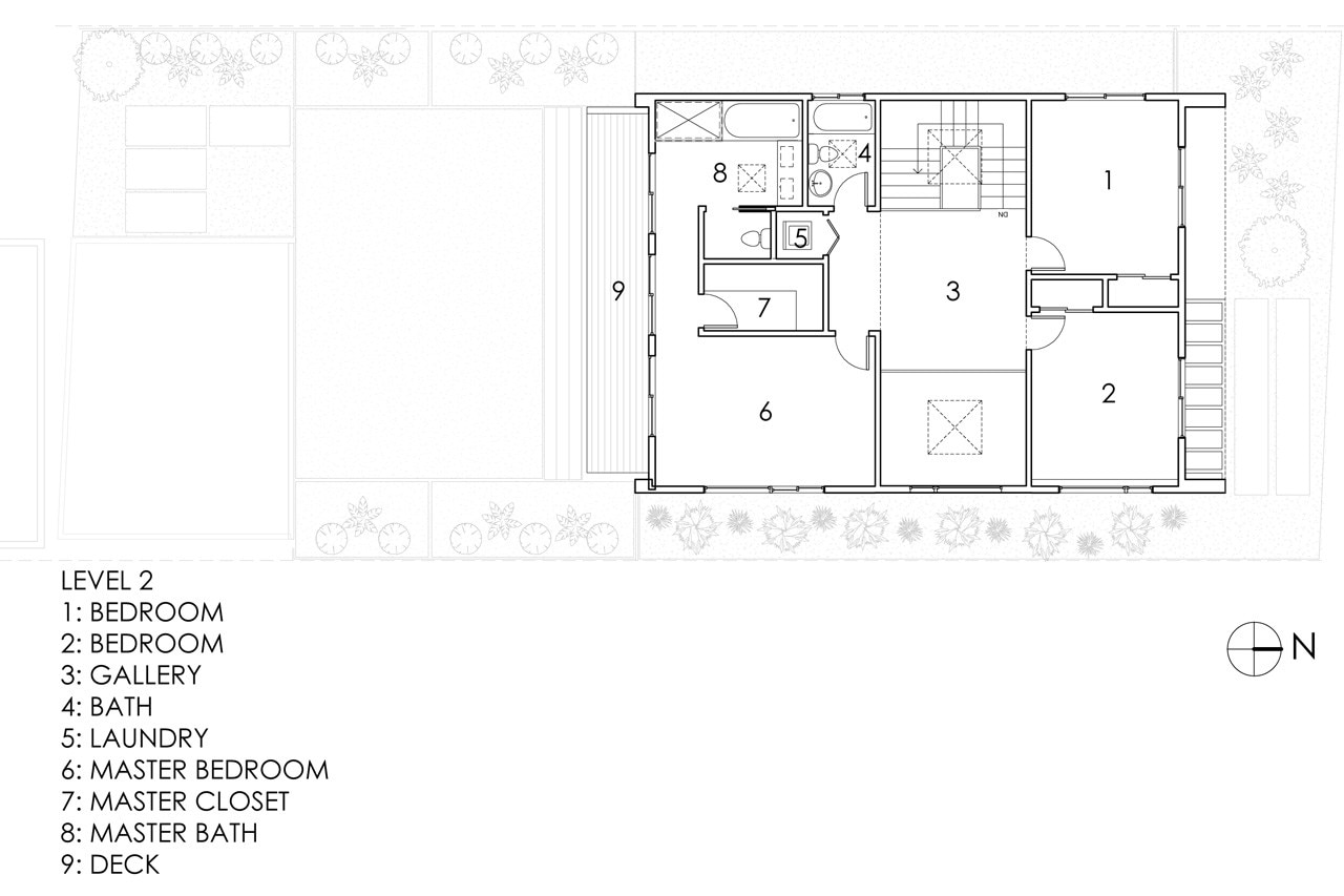
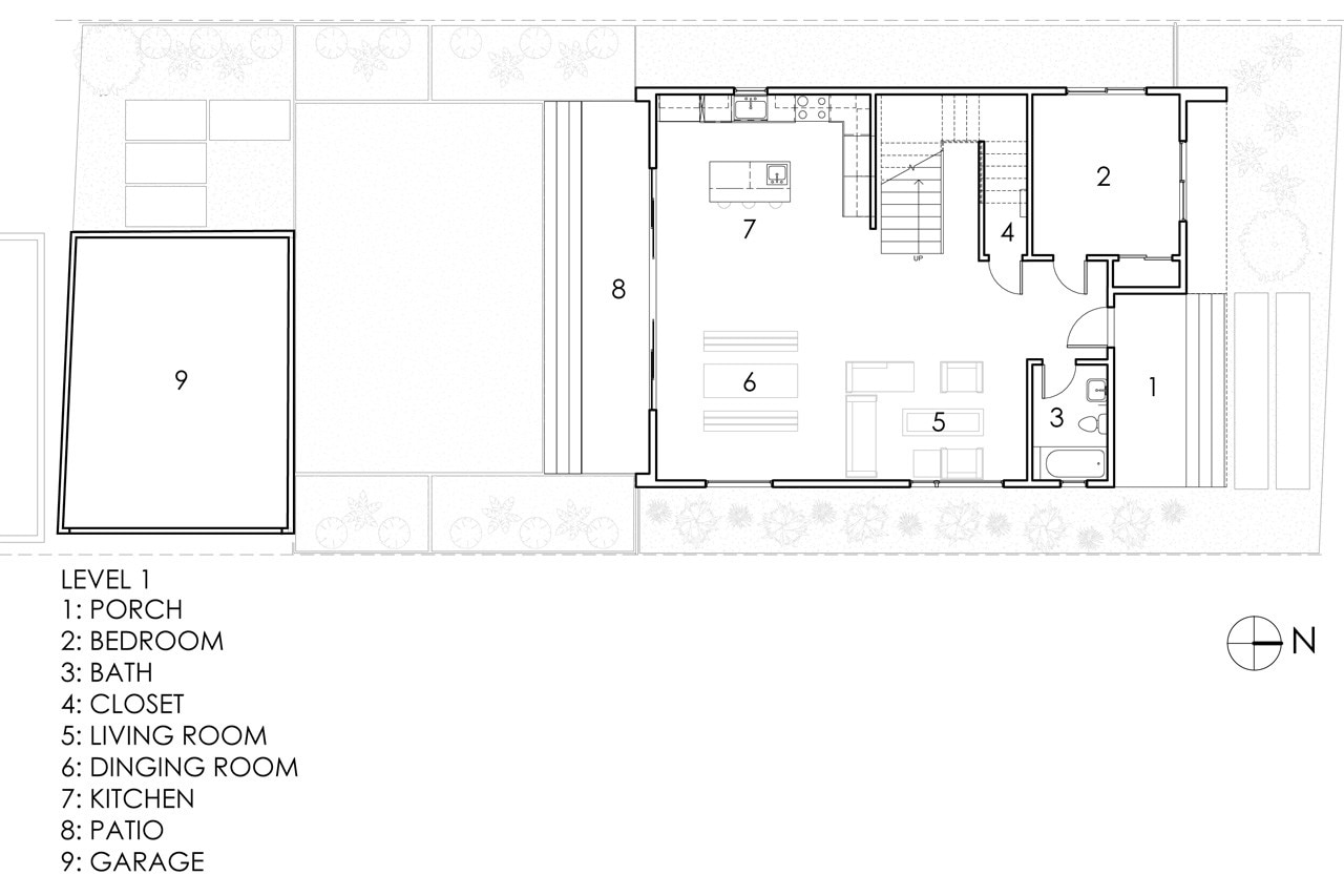
Baran Studio, House in North Oakland, California. Ground floor plan
House in North Oakland, California
Program: single-family house
Architects: Baran Studio Architecture
Completion: 2015
