Sullo stesso lotto si trovano anche una scuola e una sala parrocchiale nella parte posteriore. L’edificio è il risultato di una intensa collaborazione tra il proprietario del lotto e gli architetti, sviluppato tenendo in considerazione le diverse esigenze delle funzioni preesitenti.
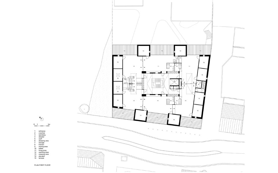
Le sei aree dedicate ai bambini sono collocate al primo piano. Questo crea un ingombro ridotto al piano terra e la massima superficie coperta possibile da destinare al gioco all’aperto. Il primo piano è un grande ambiente luminoso illuminato dal lucernario centrale e collegato alle terrazze.
Galleria
0716PLU-sections [Sheet Title]
ZAmpone architectuur, Pluchke Nursery, Ukkel, Belgio. Sezioni
0716PLU-facades [Sheet Title]
ZAmpone architectuur, Pluchke Nursery, Ukkel, Belgio. Prospetti
0716PLU-plan +0 [Sheet Title]
ZAmpone architectuur, Pluchke Nursery, Ukkel, Belgio. Pianta del piano terra
Pluchke Nursery, Ukkel, Belgio
Tipologia: asilo nido
Architetti: ZAmpone architectuur
Impresa: DSV nv
Ingegneria strutturale: Jo Deflander bvba
Ingegenria impiantistica: AA&O nv
Grafica: Moos gallery
Budget: € 2.035.000 escluse tasse
Area: 1.200 mq
Completamento: 2014
