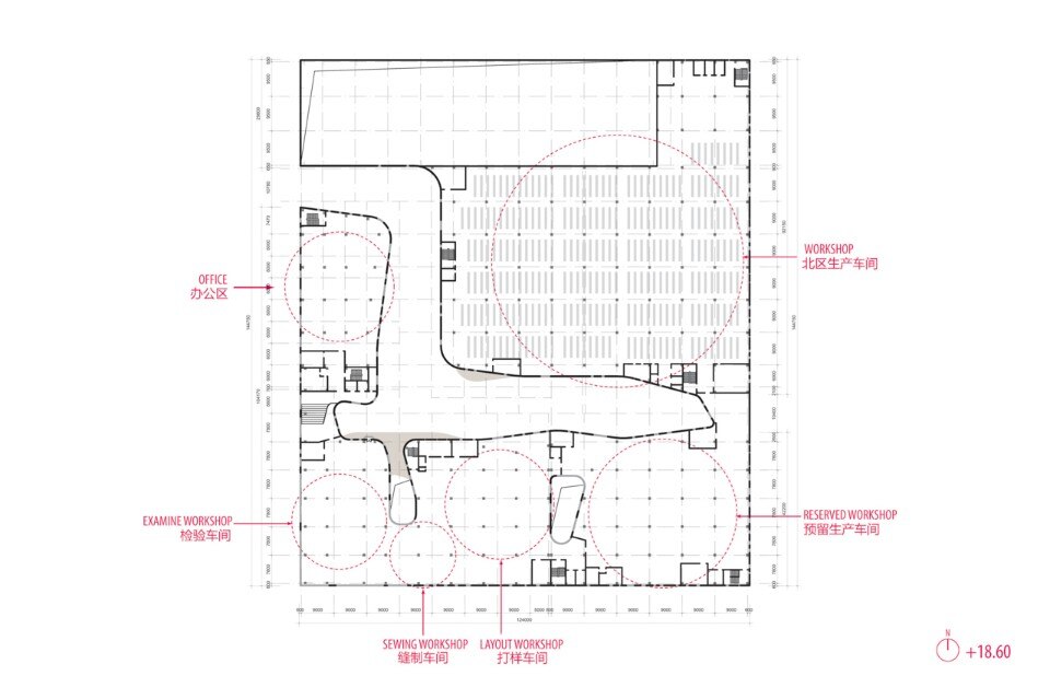
Seguendo l’idea di Aimer di aumentare l'efficienza operativa, gli architetti hanno svolto una ricerca approfondita sui percorsi e sui modi di uso dello spazio di beni, dipendenti e visitatori.
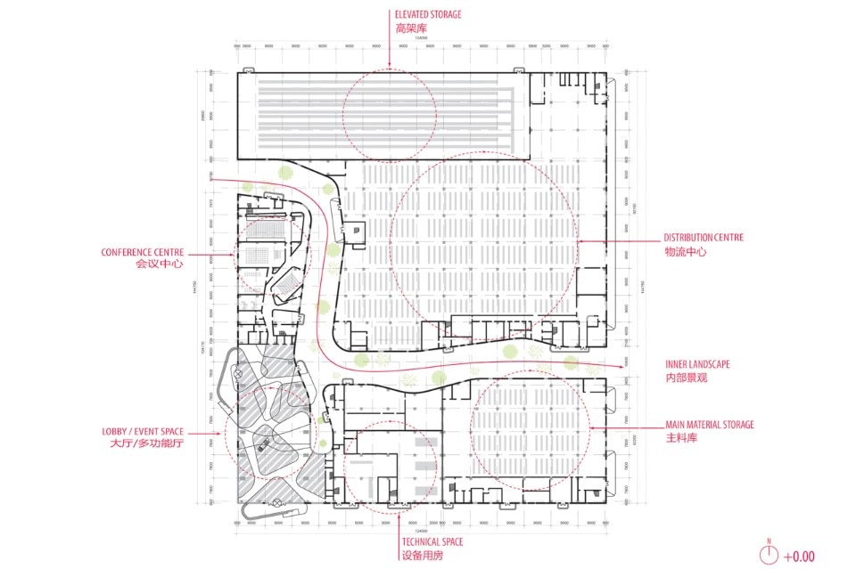
L’ingresso del pubblico avviene nell’ala ovest, in una hall alta 12 metri, e invita i visitatori verso il negozio e il museo Aimer, oltre che al centro conferenze al piano terra che ospiterà eventi di settore. Sopra il centro congressi e la hall è situata la zona uffici, che condivide una piattaforma comune con le aree di produzione, riducendo il tempo di comunicazione interna tra l’amministrazione e la produzione.
Tagliando un vuoto nella costruzione e creando un percorso sospeso a 13 metri d’altezza, lo spazio pubblico al piano terra viene raddoppiato e si permette all’aria di circolare meglio orizzontalmente e verticalmente lungo la facciata interna ricurva.
L’uso di vetrate lungo la facciata interna massimizza la quantità di luce naturale che illumina le aree di produzione e gli uffici. La piattaforma sospesa in legno serve anche come spazio comune in cui i lavoratori di entrambi i reparti possono passeggiare e rilassarsi.
Galleria
Aimer Lingerie Factory, Distretto di Shunyi, Pechino, Cina
Tipologia: edificio industriale
Architetti: Crossboundaries
Collaboratori e ingegneri: BIAD International Studio & BIAD TSH International Studio
Committente: Beijing Aimer Lingerie
Area: 53.000 mq
Completamento: 2014
