Following the idea to boost Aimer’s operational efficiency in order to move up the value chain, Crossboundaries responded with detail research and understanding of how Aimers goods, employees and visitors navigate within and between the spaces.
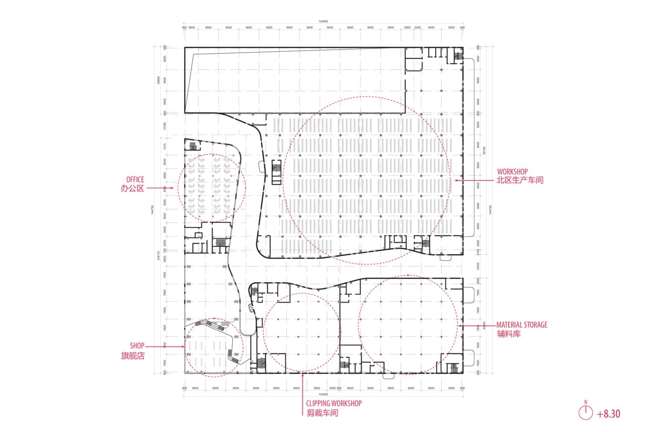
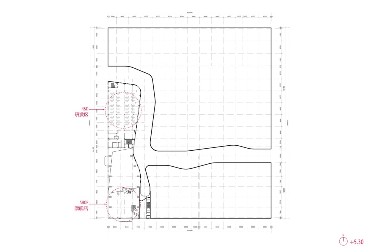
The west public entry into the 12m high lobby invites visitors to the southwest corner of shop and Aimer museum as well as the ground floor conference center that will host industry events. Above the conference center and lobby is the office area, which shares a communal deck with the manufacturing areas, cutting down in-house communication time between administration and production.
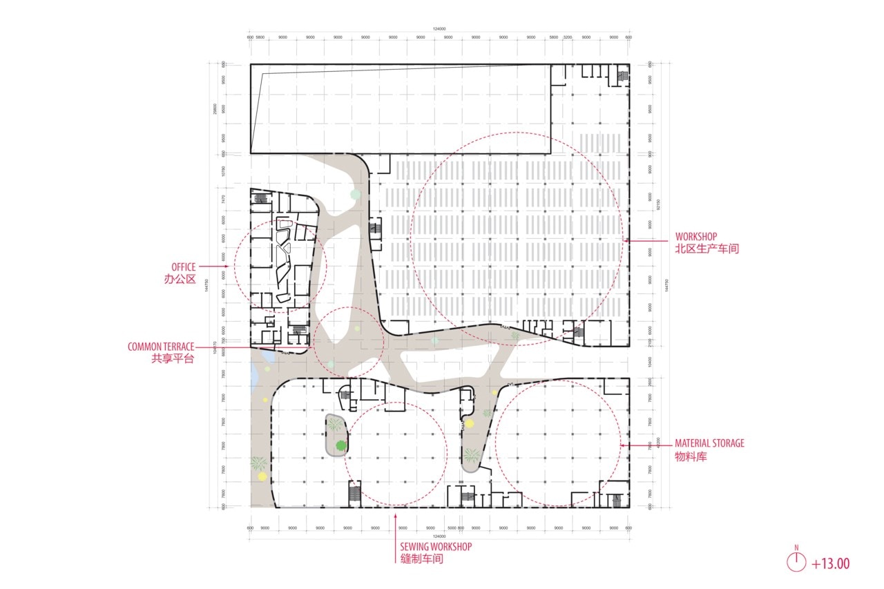
By cutting a void in the builiding and placing a communal deck set at level +13m, the doubled public space crossing ground floor and the deck allows air to better circulate horizontally and vertically along the curved inner facade.
The use of top-hinged glass windows along the inner facade maximize the amount of natural light that shines into both manufacturing and office areas. This timbered deck therefore serves as a bridge to bring administration and workers to stroll and relax in the same place.
View gallery
Aimer Lingerie Factory, Shunyi District, Beijing, China
Program: factory
Architects: Crossboundaries
Collaborating Architects & Engineers: BIAD International Studio & BIAD TSH International Studio
Client: Beijing Aimer Lingerie
Area: 53,000 sqm
Completion: 2014
