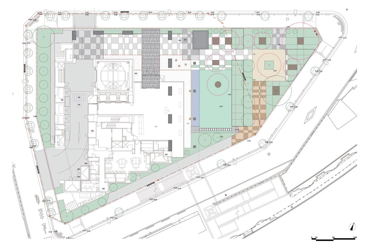
Insieme a questi alberi disposti come in un Ikebana, STGK ha progettato la pavimentazione ricostruendo il pattern tradizionale giapponese. Il motivo a quadri irregolare è stato applicato a tutti i percorsi che delimitano le aree piantumate, creando un giardino tradizionale dall’aspetto moderno.
Catturando la finezza della natura e della tradizione nella cultura giapponese e reinterpretandole in chiave contemporanea, il progetto esprime la raffinata ospitalità dell’hotel.
Galleria
Mitsui Garden Hotel Osaka Premier, Nakanoshima, Osaka, Giappone
Tipologia: giardino
Architetti: STGK
Committente: Mitsui Fudosan
Impresa: Shimizu Corporation
Area: 1.934 mq
Completamento: 2014
