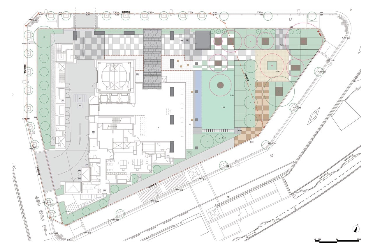
Along with this Ikebana-like planting, STGK designed the pavement by re-constructing the traditional japanese pattern. The random checked pattern is applied for the entire pavement and the plantation zoning. It has made the garden look modern yet traditional.
Capturing the fineness of nature and tradition in Japanese culture and re-interpreting them in present time has resulted in the expressing of the hotel’s fine hospitality.
View gallery
Mitsui Garden Hotel Osaka Premier, Nakanoshima, Osaka, Japan
Program: garden
Architects: STGK
Client: Mitsui Fudosan
Contractor: Shimizu Corporation
Area: 1,934 sqm
Completion: 2014
