Galleria
\\Serveurnas\data\DONNÉES_ACTIVES\Projets_en_cours\14-03- Catalogue MAQ\axonométries\Toutes les axonometries AXONO (1)
Atelier Pierre Thibault, Le Grand Plateau, Lake Heron, Canada. Vista assonometrica
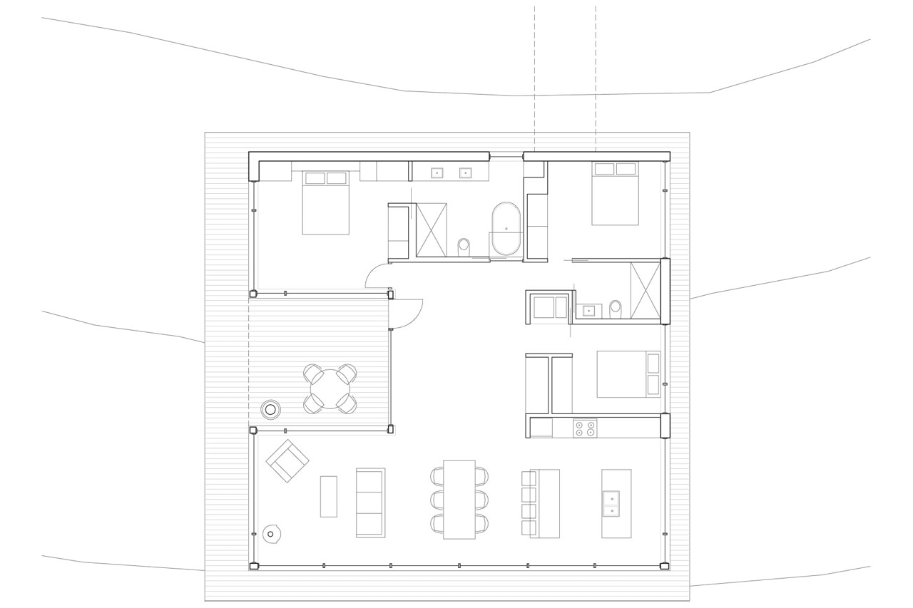
plan_rez-de-chaussée
Atelier Pierre Thibault, Le Grand Plateau, Lake Heron, Canada. Pianta del piano terra
plan_toit
Atelier Pierre Thibault, Le Grand Plateau, Lake Heron, Canada. Pianta della terrazza
Le Grand Plateau, Lake Heron, Canada
Tipologia: casa unifamiliare
Architetti: Atelier Pierre Thibault
Team di progetto: Pierre Thibault & Jérôme Lapierre
Area: 153 mq
Completamento: 2014
