View gallery
\\Serveurnas\data\DONNÉES_ACTIVES\Projets_en_cours\14-03- Catalogue MAQ\axonométries\Toutes les axonometries AXONO (1)
Atelier Pierre Thibault, Le Grand Plateau, Lake Heron, Canada. Axonometrical view
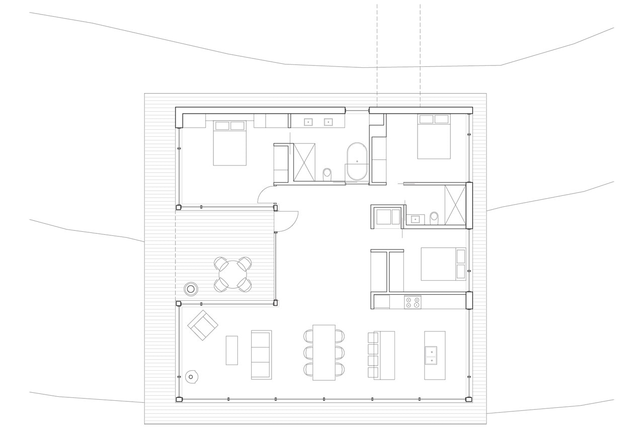
plan_rez-de-chaussée
Atelier Pierre Thibault, Le Grand Plateau, Lake Heron, Canada. Ground floor plan
Le Grand Plateau, Lake Heron, Canada
Program: single-family house
Architects: Atelier Pierre Thibault
Design Team: Pierre Thibault & Jérôme Lapierre
Area: 153 sqm
Completion: 2014
