Galleria
140329 020 sakaki dwg [Converted]
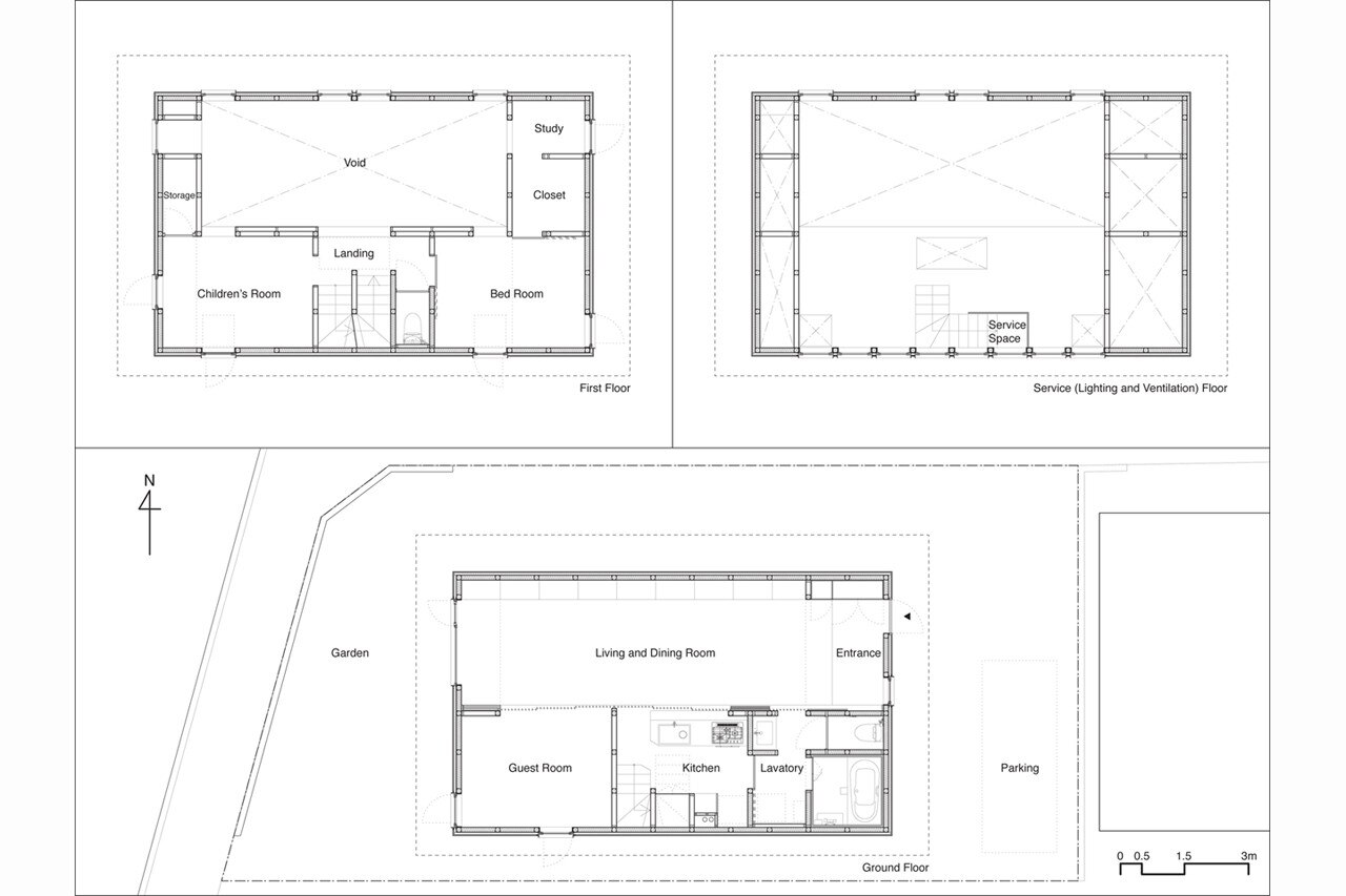
Atelier Moto Katono, S House, Toyohira-ku, Sapporo, Hokkaido, Giappone
S House, Toyohira-ku, Sapporo, Hokkaido, Giappone
Tipologia: casa unifamiliare
Architetti: Atelier Moto Katono
Collaboratore: Mari Shimazaki
Collaboratori esterni: Katono Architects Co.,Ltd.
Committente: privato
Impresa: Sekiwa Kensetsu Sapporo
Ingegneria strutturale: SATO mokuzai
Ingegneri: SEIWA, ECOTEC Co.,Ltd.
Arredi: Mari Shimazaki (tavolo da pranzo)
Area: 59 mq
Completamento: 2013
